Прадаецца 2-пакаёвая кватэра ў Мінску на вуліцы Міхаіла Савіцкага, 8

вул. Міхаіла Савіцкага, 8, Мінск
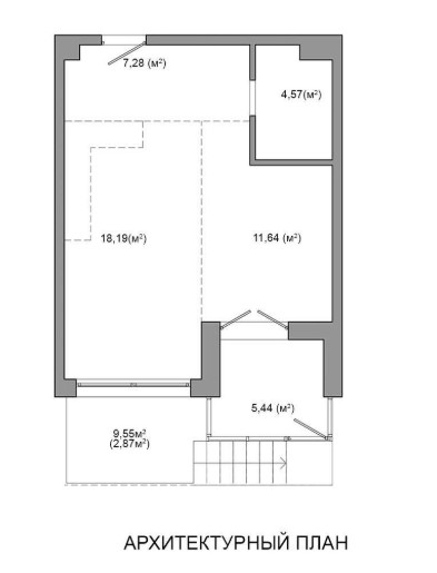
49.6 м2
Агульная плошча
29.83 м2
Жылая
2
Пакояў
2.7 м
Вышыня столі
1 з 15
Паверх
Апісанне

В продаже , напрямую от застройщика, 2-комнатная квартира в доме «Манила», квартал "Азия".

Дом «Манила»,в квартале "Азия" комплекса Minsk World - уникальная локация многофункционального комплекса с развитой инфраструктурой, местами для отдыха и развлечения, бизнеса и всестороннего развития.Все квартиры на момент ввода являются однокомнатными с возможностью их разделения на комнаты по индивидуальному проекту каждого собственника.

Вы покупаете по цене застройщика и заключаете договор только с застройщиком!

Звоните прямо сейчас! Подберём подходящий вариант недвижимости по вашему запросу!

Консультации по телефону или любому мессенджеру.

Договор №13/16 от 30.01.2024

ОДО «Юриэлт», УНП 101214439, Лицензия Министерства юстиции РБ №02240/8 от 17.02.2005 года (бессрочная) на право осуществления деятельности по оказанию юридических услуг - риэлтерских услуг.

Уласцівасці
Пакояў
2
Агульная плошча
49.6 м2
Жылая
29.83 м2
Паверх
1 з 15
Вышыня столі
2.7 м
Адрас на мапе
вул. Міхаіла Савіцкага, 8, Мінск
Інфраструктура
Абноўлена29.10.2025, 10:30
Нумар дамовы№13/16 от 30.01.2024
Усяго праглядаў12

Падобныя аб'екты побач

325 028 Br
9 130 Br/м2
1 пак.
35.6 м2
1 /15  паверх
Мінск
307 175 Br
5 418 Br/м2
3 пак.
56.7 м2
1 /15  паверх
вул. Міхаіла Савіцкага, 8, Мінск
236 089 Br
6 148 Br/м2
2 пак.
38.4 м2
3 /25  паверх
Мінск
Аэрадромная ~1136 метраў
220 133 Br
7 101 Br/м2
1 пак.
31 м2
6 /25  паверх
Мінск
212 450 Br
7 782 Br/м2
1 пак.
27.3 м2
22 /24  паверх
вул. Міхаіла Савіцкага, 3, Мінск
Аэрадромная ~1139 метраў
369 350 Br
6 715 Br/м2
3 пак.
55 м2
13 /16  паверх
вул. Лейтэнанта Кіжаватава, 1Б, Мінск
292 230 Br
7 772 Br/м2
2 пак.
37.6 м2
10 /15  паверх
Мінск
Аэрадромная ~1166 метраў
182 902 Br
6 076 Br/м2
1 пак.
30.1 м2
7 /25  паверх
Мінск
304 344 Br
7 423 Br/м2
2 пак.
41 м2
23 /25  паверх
Мінск
234 907 Br
6 182 Br/м2
2 пак.
38 м2
4 /25  паверх
вул. Ігара Лучанка, 8, Мінск
Аэрадромная ~711 метраў
381 169 Br
5 200 Br/м2
3 пак.
73.3 м2
2 /25  паверх
вул. Лейтэнанта Кіжаватава, 3Д, Мінск
Аэрадромная ~1058 метраў
304 344 Br
9 692 Br/м2
Студыя
31.4 м2
24 /25  паверх
вул. Бялградская, 9, Мінск
Аэрадромная ~806 метраў