Прадаецца 1-пакаёвая кватэра ў Мінску на вуліцы Янкі Лучыны, 34

вул. Янкі Лучыны, 34, Мінск
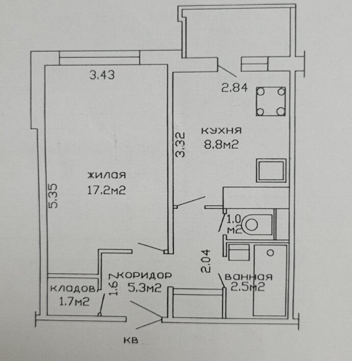
37.4 м2
Агульная плошча
17.2 м2
Жылая
8.8 м2
Кухня
1
Пакояў
1 з 12
Паверх
2001
Год пабудовы
Апісанне

Уютная однокомнатная квартира в перспективном микрорайоне Лошица по адресу ул. Янки Лучины 34

Прекрасное расположение дома, в непосредственной близости есть все необходимое для комфортной жизни. Это - сады, школы, гимназия в шаговой доступности, большое количество различных магазинов, 37 поликлиника, спортивный комплекс «Мандарин», банки и мн.др.

Удобное транспортное сообщение, остановка общественного транспорта в 3 мин. ходьбы от дома, а также удобный выезд на МКАД.

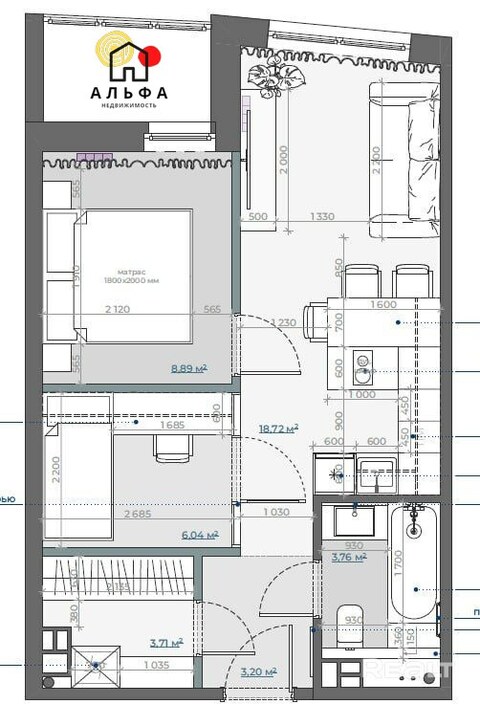
Квартира в хорошем состоянии продается частично с мебелью и техникой, окна пластиковые, дверь входная металлическая. На лоджии имеется вместительный подвал для хранения. Высота потолка 2,64м

Для активного отдыха в 4 остановках от дома расположен Лошицкий парк.

Для покупки этой квартиры поможем продать вашу!!!

Частное унитарное предприятие «Дианэст», УНП 190124316, лицензия №02240/54 от 06.06.2005. Договор №167/4 от 21.10.2025

Уласцівасці
Пакояў
1
Агульная плошча
37.4 м2
Жылая
17.2 м2
Кухня
8.8 м2
Паверх
1 з 12
Год пабудовы
2001
Санвузел
Раздзельны
Балкон/лоджыя
1
Адрас на мапе
вул. Янкі Лучыны, 34, Мінск
Інфраструктура
Абноўлена24.10.2025, 14:00
Нумар дамовы167/4 от 21.10.2025
Усяго праглядаў13

Падобныя аб'екты побач

294 442 Br
5 443 Br/м2
2 пак.
54.1 м2
8 /19  паверх
вул. Станіслава Манюшкі, 14, Мінск
226 723 Br
4 115 Br/м2
3 пак.
55.1 м2
1 /3  паверх
вул. Пухавіцкая, 16, Мінск
Немаршанскі сад ~834 метра
198 383 Br
5 647 Br/м2
1 пак.
35.13 м2
9 /9  паверх
вул. Асаналіева, 13к3, Мінск
Немаршанскі сад ~724 метра
284 896 Br
4 557 Br/м2
3 пак.
62.52 м2
8 /9  паверх
вул. Асаналіева, 13к1, Мінск
Немаршанскі сад ~704 метра
268 190 Br
5 611 Br/м2
2 пак.
47.8 м2
4 /25  паверх
Мінск
184 660 Br
6 094 Br/м2
1 пак.
30.3 м2
2 /25  паверх
вул. Леаніда Шчамялёва, 28, Мінск
Аэрадромная ~1140 метраў
181 677 Br
6 988 Br/м2
1 пак.
26 м2
10 /25  паверх
Мінск
Аэрадромная ~1125 метраў
173 026 Br
6 655 Br/м2
1 пак.
26 м2
14 /25  паверх
Мінск
Аэрадромная ~1124 метра
216 282 Br
6 717 Br/м2
1 пак.
32.2 м2
25 /25  паверх
Мінск
Аэрадромная ~1120 метраў
181 677 Br
6 097 Br/м2
1 пак.
29.8 м2
13 /25  паверх
вул. Леаніда Шчамялёва, 26, Мінск
Аэрадромная ~1112 метраў
190 925 Br
6 343 Br/м2
1 пак.
30.1 м2
10 /25  паверх
вул. Леаніда Шчамялёва, 26, Мінск
Аэрадромная ~1112 метраў
183 467 Br
6 157 Br/м2
1 пак.
29.8 м2
25 /25  паверх
Мінск
Аэрадромная ~1106 метраў