Прадаецца 4-пакаёвая кватэра ў Мінску на вуліцы Беларуская, 15

вул. Беларуская, 15, Мінск
Першамайская ~572 метра
Плошча Леніна ~1013 метраў
Вакзальная ~1053 метра
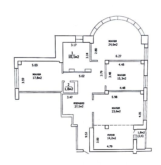
136.7 м2
Агульная плошча
81.3 м2
Жылая
14.2 м2
Кухня
4
Пакояў
2.7 м
Вышыня столі
8 з 16
Паверх
2004
Год пабудовы
Апісанне

Продажа просторной 4-комнатной квартиры в центре Минска

По ул. Белорусская, 15

Площадь 135/81,3/14,2

Возможен обмен

Светлая просторная квартира с шикарной планировкой: кухня-гостиная, две спальни, кабинет, гардеробная и два санузла. Кухня оборудована всей необходимой техникой: электрическая варочная панель, духовой шкаф, вытяжка, посудомоечная машина, холодильник. На полу паркетная доска, потолки комбинированные. Видеодомофон. Установленно 2 кондиционера.

На этаже всего три квартиры. В доме два лифта: пассажирский и грузовой. Дом обслуживает товарищество собственников. Есть консьерж. По периметру и в парадной части подъезда установлено видеонаблюдение. Своя парковка под шлагбаумом.

Выгодное расположение в центре столицы (напротив реки Свислочь и стадиона Динамо) позволяет быстро добраться в любую точку города. В 7-ми минутах ходьбы ст. м. «Первомайская».

Поможем с продажей вашей недвижимости для покупки этой.

Приезжайте на просмотр!

Гарантия безопасности сделки и полное юридическое сопровождение!

Еще не продали или хотите обменять Вашу недвижимость, мы Вам поможем! Подайте онлайн заявку на нашем сайте или обратитесь к нам по нашему телефону, чтобы получить более подробную информацию.

Частное унитарное предприятие «Дианэст», УНП 190124316, лицензия №02240/54 от 06.06.2005. Договор № 113/4 от 21.10.2025г

Уласцівасці
Метро
Купалаўская, Першамайская, Плошча Леніна, Вакзальная
Пакояў
4
Агульная плошча
136.7 м2
Жылая
81.3 м2
Кухня
14.2 м2
Паверх
8 з 16
Вышыня столі
2.7 м
Год пабудовы
2004
Санвузел
Раздзельны
Балкон/лоджыя
1
Адрас на мапе
вул. Беларуская, 15, Мінск
Інфраструктура
Абноўлена22.10.2025, 16:30
Нумар дамовы113/3 от 21.10.2025
Усяго праглядаў10

Падобныя аб'екты побач

498 815 Br
8 782 Br/м2
2 пак.
56.8 м2
2 /5  паверх
вул. Карла Маркса, 36, Мінск
Купалаўская ~120 метраў
667 072 Br
6 849 Br/м2
4 пак.
97.4 м2
4 /6  паверх
пр. Незалежнасці, 19, Мінск
Купалаўская ~314 метраў
381 184 Br
8 745 Br/м2
2 пак.
43.59 м2
5 /5  паверх
вул. Гарадскі Вал, 9, Мінск
Купалаўская ~659 метраў
586 666 Br
7 541 Br/м2
3 пак.
77.8 м2
5 /9  паверх
вул. Карла Маркса, 42, Мінск
Кастрычніцкая ~309 метраў
681 962 Br
10 240 Br/м2
2 пак.
66.6 м2
4 /4  паверх
вул. Гарадскі Вал, 8, Мінск
Купалаўская ~621 метр
714 124 Br
8 343 Br/м2
3 пак.
85.6 м2
3 /9  паверх
вул. Пуліхава, 29, Мінск
Пралетарская ~779 метраў
574 754 Br
6 770 Br/м2
3 пак.
84.9 м2
4 /4  паверх
вул. Раманаўская Слабада, 1, Мінск
Няміга ~587 метраў
921 691 Br
7 481 Br/м2
4 пак.
123.2 м2
2 /14  паверх
вул. Захарава, 50В, Мінск
Плошча Перамогі ~837 метраў
729 610 Br
13 099 Br/м2
2 пак.
55.7 м2
2 /4  паверх
Вайсковы завулак, 1, Мінск
Плошча Перамогі ~353 метра
866 598 Br
5 220 Br/м2
4 пак.
166 м2
6 /7  паверх
вул. Быхаўская, 37, Мінск
Кавальская Слабада ~363 метра
744 500 Br
5 853 Br/м2
4 пак.
127.2 м2
7 /10  паверх
вул. Варанянскага, 1А, Мінск
Інстытут культуры ~772 метра
565 522 Br
5 475 Br/м2
3 пак.
103.3 м2
4 /6  паверх
вул. Авакяна, 30к3, Мінск
Кавальская Слабада ~660 метраў