Прадаецца 4-пакаёвая кватэра ў Лідзе на вуліцы Тухачэўскага, 65

вул. Тухачэўскага, 65, Ліда
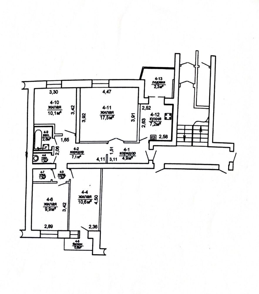
73.7 м2
Агульная плошча
48.1 м2
Жылая
7.2 м2
Кухня
4
Пакояў
1 з 5
Паверх
1993
Год пабудовы
Апісанне

Просторная 4-комнатная квартира улучшенной планировки с двумя лоджиями. В квартире выполнен качественный ремонт: выровненные стены оклеены, в коридоре и спальне нанесена декоративная штукатурка; на полу залита стяжка и уложен ламинат/плитка; потолки натяжные. Ещё одно уютное решение - лоджия объединенная с кухней. Дом находится в микрорайоне с хорошей инфраструктурой. Через дорогу расположена школа №15 и детский сад №35. Рядом магазины, церковь, костёл, остановки общественного транспорта и лес с обустроенной для прогулок территорией. Поможем продать Вашу недвижимость для покупки данного объекта. Бесплатная консультация.

Уласцівасці
Пакояў
4
Агульная плошча
73.7 м2
Жылая
48.1 м2
Кухня
7.2 м2
Паверх
1 з 5
Год пабудовы
1993
Санвузел
Раздзельны
Балкон/лоджыя
1
Адрас на мапе
вул. Тухачэўскага, 65, Ліда
Інфраструктура

Падобныя аб'екты побач

122 154 Br
1 989 Br/м2
3 пак.
61.4 м2
5 /5  паверх
вул. Тухачэўскага, 73, Ліда
111 754 Br
1 918 Br/м2
3 пак.
62 м2
5 /5  паверх
вул. Тухачэўскага, 71, Ліда
140 065 Br
2 230 Br/м2
3 пак.
62.8 м2
4 /5  паверх
вул. Тухачэўскага, 75, Ліда
146 025 Br
2 398 Br/м2
3 пак.
60.9 м2
2 /5  паверх
вул. Тухачэўскага, 71к1, Ліда
125 164 Br
2 523 Br/м2
2 пак.
49.6 м2
8 /9  паверх
вул. Рыбіноўскага, 64к1, Ліда
151 985 Br
2 258 Br/м2
3 пак.
67.3 м2
4 /9  паверх
вул. Рыбіноўскага, 64к1, Ліда
149 005 Br
2 096 Br/м2
3 пак.
71.1 м2
5 /5  паверх
вул. Рыбіноўскага, 50, Ліда
151 985 Br
2 367 Br/м2
3 пак.
64.2 м2
2 /5  паверх
вул. Тухачэўскага, 89, Ліда
157 945 Br
2 002 Br/м2
3 пак.
78.9 м2
9 /9  паверх
вул. Гастэлы, 47к4, Ліда
122 184 Br
2 040 Br/м2
3 пак.
59.9 м2
5 /5  паверх
вул. Рыбіноўскага, 66, Ліда
183 276 Br
2 951 Br/м2
3 пак.
62.1 м2
5 /5  паверх
вул. Рыбіноўскага, Ліда
199 667 Br
2 505 Br/м2
4 пак.
79.7 м2
1 /9  паверх
вул. Гастэлы, 47, Ліда