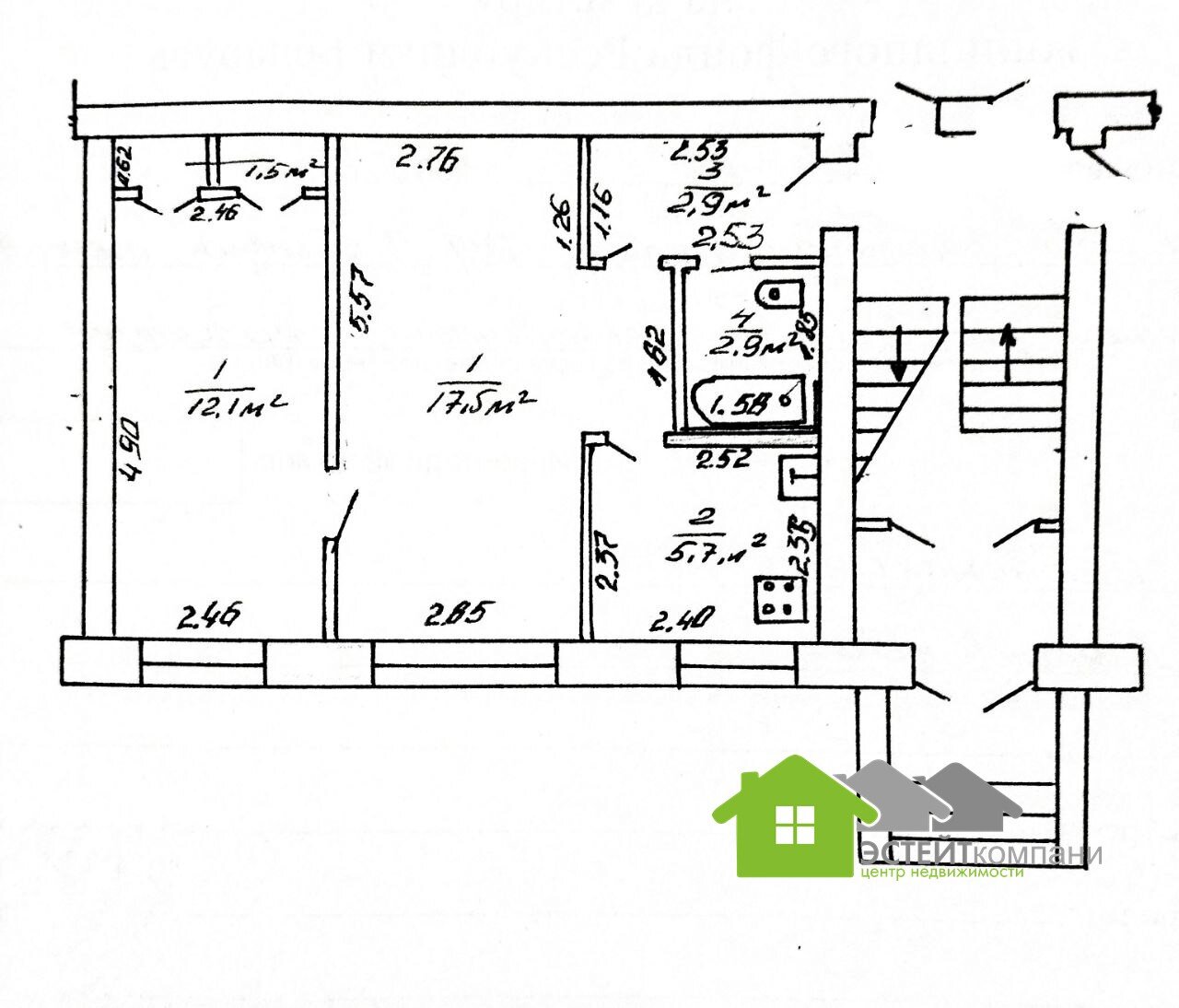
2к квартира с ремонтом в живописном агрогородке Гезгалы (Дятловский р-н). Квартира расположена на высоком 1-ом этаже 5-тиэтажного дома. Общая площадь 42,6 м.кв., жилая - 29,6 м.кв., кухня - 5,7 м.кв. В квартире выполнен аккуратный ремонт - заменены окна, сантехника, дверь входная металлическая, потолки натяжные, на полу ламинат, плитка. В 2023 году планируется капитальный ремонт дома с оборудованием балконов на 1-ом этаже. Квартира продается со всей мебелью и бытовой техникой.Агрогородок расположен в уютном ухоженном месте на берегу водохранилища с живописной природой в окружении лесного массива, прекрасное место для проживания и отдыха. Инфраструктура городка позволит особенно хорошо чувствовать себя как пожилым людям, так и молодым семьям с детьми - здесь есть все необходимое в шаговой доступности - школа, детский сад, аптека, амбулатория, Дом Культуры, почта, различные магазины. Отличное предложение для тех, кто устал от городской суеты и мечтает жить в своей квартире. Хорошее транспортное сообщение. Автобусы и маршрутки каждый час в Лиду, Дятлово, Мир.Санаторий Радон в 10 минутах езды (также ходит автобус).От Лиды 40 км, от Гродно 120 км, от Минска около 170 км.При необходимости поможем продать Вашу недвижимость, а также приобрести недвижимость в городе Минск. Безопасность сделки и полное юридическое сопровождение гарантируем.ООО «Эстейт Компани» на основании: лицензии Министерства юстиции Республики Беларусь № 02240/394 от 26.02.2020г. УНП 693141368 Наш адрес: г.Лида, ул. Мицкевича, 16. Договор на оказание риэлтерских услуг №409/2 от 30.12.2022 г.
 
                                         
                 
                 
                 
                 
                 
                 
                 
                 
                 
                 
                 
     
                                             
                                             
                                             
                                             
                                             
                                             
                                             
                                             
                                             
                                             
                                             
                                             
                                             
                                             
                                             
                                             
                                             
                                             
                                             
                                             
                                             
                                             
                                             
                                             
                                             
                                             
                                             
                                             
                                             
                                             
                                             
                                             
                                             
                                             
                                             
                                             
                                             
                                             
                                             
                                             
                                             
                                             
                                             
                                             
                                             
                                             
                                             
                                             
                                             
                                             
                                             
                                             
                                             
                                             
                                             
                                             
                                             
                                             
                                             
                                             
                                             
                                             
                                             
                                             
                                             
                                             
                                             
                                             
                                             
                                             
                                             
                                             
                                             
                                             
                                             
                                             
                                             
                                             
                                             
                                             
                                             
                                             
                                             
                                             
                                             
                                             
                                             
                                             
                                             
                                             
                                             
                                             
                                             
                                             
                                             
                                             
                                             
                                             
                                             
                                             
                                             
                                             
                                            