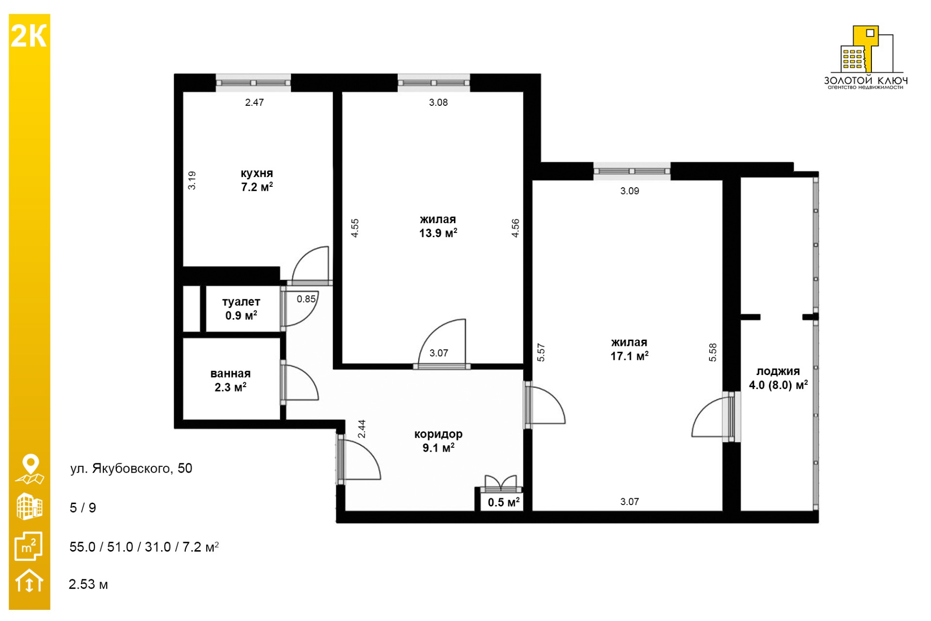
Прадаецца 2-пакаёвая кватэра ў Мінску на вуліцы Якубоўскага, 50

вул. Якубоўскага, 50, Мінск
55 м2
Агульная плошча
31 м2
Жылая
7.2 м2
Кухня
2
Пакояў
2.53 м
Вышыня столі
5 з 9
Паверх
1986
Год пабудовы
Апісанне

 Продается 2-комнатная квартира во Фрунзенском районе г. Минска

Адрес: ул. Якубовского, д. 50 

Этаж/Этажность: 5 из 9

 Материал стен: панель 

Год постройки: 1986 

Высота потолков: 2.53 м 

Площадь по СНБ: 55 м2 

Общая/жилая/кухня: 51 м2 / 31 м2 / 7.2 м2 

Лоджии: 2, застеклены

Преимущества квартиры

• Светлая, теплая и уютная 

• Окна выходят во двор — тишина и приватность 

• Чистый, ухоженный подъезд 

• Оборудованная детская площадка 

• Удобная придомовая парковка

Инфраструктура и расположение

• Улица Якубовского — важная транспортная артерия, обеспечивающая удобную связь с другими районами и выезд на МКАД 

• Расположена в микрорайонах Запад и Красный Бор 

   В шаговой доступности: 

• школа №167, детский сад №475, гимназия №39 

• Поликлиника, аптеки, магазины 

• Парки и скверы для прогулок и отдыха 

• Отличное транспортное сообщение

Описание квартиры

• Входная металлическая дверь

 • ПВХ-окна

• Покрытие полов: ковролин в жилых комнатах, плитка в прихожей и кухне 

• Установлены счетчики на воду 

• Ванная комната облицована плиткой 15×15 

• Санузел отделан декоративной штукатуркой 

• Керамическая раковина и унитаз, чугунная ванна, импортный смеситель 

• Газовая плита, кухонные шкафчики

Планировка

Квартира с удачной планировкой — рациональное распределение пространства, комфортная зона отдыха и функциональная кухня.

Открыты к конструктивному диалогу. Возможен разумный торг.

Уласцівасці
Пакояў
2
Агульная плошча
55 м2
Жылая
31 м2
Кухня
7.2 м2
Паверх
5 з 9
Вышыня столі
2.53 м
Год пабудовы
1986
Матэрыял сцен
Панэльны
Санвузел
Раздзельны
Балкон/лоджыя
1
Ліфт
Пасажырскі
Адрас на мапе
вул. Якубоўскага, 50, Мінск
Інфраструктура
Планіроўка аб`екта
Паглядзець
Абноўлена26.10.2025, 14:44
Нумар дамовы81/1 от 28.07.2025
Усяго праглядаў313

Падобныя аб'екты побач

222 452 Br
6 621 Br/м2
1 пак.
33.6 м2
8 /9  паверх
вул. Якубоўскага, 56, Мінск
342 166 Br
5 656 Br/м2
2 пак.
60.5 м2
1 /19  паверх
2-гі завулак Цімашэнка, 7, Мінск
219 232 Br
5 427 Br/м2
1 пак.
40.4 м2
2 /9  паверх
вул. Чайлытка, 11, Мінск
231 233 Br
4 363 Br/м2
2 пак.
53 м2
1 /9  паверх
вул. Якубоўскага, 21, Мінск
Кунцаўшчына ~637 метраў
251 429 Br
4 969 Br/м2
2 пак.
50.6 м2
7 /14  паверх
вул. Лабанка, 71, Мінск
272 211 Br
5 779 Br/м2
2 пак.
47.1 м2
4 /9  паверх
вул. Бурдзейнага, 7, Мінск
Кунцаўшчына ~488 метраў
358 558 Br
5 542 Br/м2
2 пак.
64.7 м2
10 /10  паверх
вул. Прытыцкага, 97, Мінск
Каменная Горка ~97 метраў
219 525 Br
5 732 Br/м2
1 пак.
38.3 м2
4 /5  паверх
вул. Лабанка, 85, Мінск
315 823 Br
4 859 Br/м2
3 пак.
65 м2
9 /12  паверх
вул. Янкоўскага, 37, Мінск
342 459 Br
3 690 Br/м2
4 пак.
92.8 м2
1 /9  паверх
вул. Скрыпнікава, 27, Мінск
345 093 Br
4 482 Br/м2
3 пак.
77 м2
2 /9  паверх
вул. Янкоўскага, 4, Мінск
292 700 Br
4 798 Br/м2
2 пак.
61 м2
6 /9  паверх
вул. Скрыпнікава, 25, Мінск