Прадаецца 4-пакаёвая кватэра ў Маладзечне на вуліцы Багдана Хмяльніцкага, 26

вул. Багдана Хмяльніцкага, 26, Маладзечна
75.9 м2
Агульная плошча
48.6 м2
Жылая
8 м2
Кухня
4
Пакояў
1 з 9
Паверх
1991
Год пабудовы
Апісанне

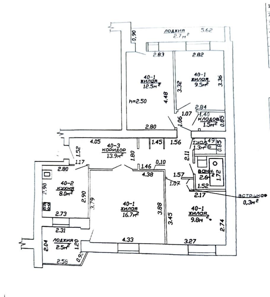
Продается просторная четырехкомнатная квартира! Адрес: г. Молодечно, ул. Б. Хмельницкого, д. 26. Квартира расположена на первом этаже девятиэтажного, кирпичного дома. Общая площадь квартиры составляет 75,9 м.кв., жилая 48,6 м.кв. кухня 8,0 м.кв. Планировка включает четыре жилые комнаты 16,7 м.кв, 12,5 м.кв, 9,8 м.кв. и 9,5 м.кв, раздельный санитарный узел, из гостинной и комнаты есть выход на застекленную лоджию. В квартире установлены стеклопакеты в санузлах плитка, на полу ламинат, частично линолеум. Квартира продается с встроенной мебелью. Дом 1991 года постройки. На доме установлена камера видеонаблюдения, в подъезде дверь с кодовым замком. Благоустроенная придомовая территория: имеется детская площадка, парковочные места. Район - тихий и спокойный, с развитой инфраструктурой, в шаговой доступности, городской парк, продуктовые магазины кафе, цветочный магазин, аптека, парикмахерская, банк, поликлиника, больница. Детский сад и школа в нескольких минутах ходьбы от дома. Рядом остановка общественного транспорта, откуда Вы с легкостью доберетесь до нужной части города. Эта квартира станет отличным выбором для семей с детьми. Мы с радостью покажем Вам квартиру и сделаем Вас её счастливыми хозяевами!

Уласцівасці
Пакояў
4
Агульная плошча
75.9 м2
Жылая
48.6 м2
Кухня
8 м2
Паверх
1 з 9
Год пабудовы
1991
Санвузел
Раздзельны
Балкон/лоджыя
1
Адрас на мапе
вул. Багдана Хмяльніцкага, 26, Маладзечна
Інфраструктура

Падобныя аб'екты побач

171 901 Br
2 795 Br/м2
3 пак.
61.5 м2
5 /5  паверх
вул. Багдана Хмяльніцкага, 30, Маладзечна
144 166 Br
3 668 Br/м2
1 пак.
39.3 м2
2 /6  паверх
вул. Багдана Хмяльніцкага, 36, Маладзечна
166 123 Br
2 728 Br/м2
3 пак.
60.9 м2
1 /9  паверх
вул. Францішка Скарыны, 32, Маладзечна
151 678 Br
2 753 Br/м2
1 пак.
55.1 м2
5 /9  паверх
вул. Францішка Скарыны, 24, Маладзечна
158 901 Br
2 879 Br/м2
1 пак.
55.2 м2
4 /9  паверх
вул. Францішка Скарыны, 24, Маладзечна
164 679 Br
2 652 Br/м2
3 пак.
62.1 м2
7 /9  паверх
вул. Францішка Скарыны, 23, Маладзечна
123 365 Br
3 264 Br/м2
1 пак.
37.8 м2
3 /5  паверх
вул. Будаўнікоў, 14, Маладзечна
134 343 Br
2 666 Br/м2
2 пак.
50.4 м2
3 /5  паверх
вул. Францішка Скарыны, 4А, Маладзечна
201 659 Br
3 253 Br/м2
3 пак.
62 м2
2 /5  паверх
вул. Францішка Скарыны, 4, Маладзечна
187 792 Br
2 871 Br/м2
3 пак.
65.4 м2
6 /7  паверх
вул. Вялікі Гасцінец, 119, Маладзечна
197 903 Br
3 934 Br/м2
2 пак.
50.3 м2
4 /9  паверх
вул. Будаўнікоў, 13В, Маладзечна
118 164 Br
2 723 Br/м2
2 пак.
43.4 м2
3 /4  паверх
вул. Багдана Хмяльніцкага, 7, Маладзечна