Прадаецца трохузроўневы катэдж у вёсцы Падгор'е плошчай 260.4 м² і ўчасткам 20 сотак

вул. Цэнтральная, в. Падгор'е
260.4 м2
Агульная плошча
74.3 м2
Жылая
46.2 м2
Кухня
2018
Год пабудовы
Апісанне

Шикарный дом в живописном месте у реки Волма

❤️ Отличное предложение по цене квартиры в Минске всего в 32 км от МКАД!

- 3-уровневый блочный дом 2018 года постройки общей площадью 260,4 кв.м. 79% готовности. Дом полностью дал усадку, что беспрепятственно дает возможность для внутренней отделки. - Дом построенный инженерами, в котором заложен большой запас прочности! - Силикатный блок – экологически безопасный материал, который обладает хорошими звукопоглощением, морозостойкостью и теплоемкостью - все нужные свойства, для комфортного проживания. Газосиликатный блок облицован декоративным бессерным блоком. Суммарная толщина наружных стен 600 мм.- На 1-ом этаже находятся: просторное помещение 46,2 кв.м, которое можно оборудовать как кухонную зону с гостиной, где вы сможете проводить вечера в кругу семьи, для Ваших гостей - спальня 14,5 кв.м., санузел и просторная прихожая 11,9 кв.м.- На втором этаже: 4 отдельные жилые комнаты разных площадей – места для каждого члена семьи. Окна комнат выходят на все стороны дома, что позволяет Вам выбрать любую сторону света, особенное если привыкли просыпаться с первыми лучами солнца, либо же любите наблюдать за закатом.- Фундамент: смонтированы ж/б сваи, поверх которых залита железобетонная плита.- На цокольном этаже несколько помещений для бытового использования и отдыха. Цокольный этаж сухой - без намека на сырость! - Крыша – композитная черепица Метробонд– прочный и долговечный материал.- Окна немецкие шириной профиля 100 мм!!!!- Коммуникации: водоснабжение – скважина; канализация – местная; двух- и трехфазное электричество; электроподстанция позволяет сделать электрическое отопление.

- В Вашем распоряжении участок площадью 20,14 соток – достаточно свободного места для строения различных хозпостроек, бани, беседки, а также сада и огорода.- Участок ровный, прямоугольной формы, удобен для любого вида ограждений.- Вдоль деревни протекает река Волма – полностью пригодна для плавания и рыбалки.- Вокруг лесной массив, где в летний период Вы сможете собирать грибы и ягоды.- До Смиловичей всего 4 км, а это вся необходимая инфраструктура города.- До МКАД – 32 км по трассе М-4, всего 15-20 минут езды и Вы уже в столице, также ходят автобусы и маршрутки.

❤️ Мы с радостью покажем Вам дом и сделаем Вас его счастливыми хозяевами!

А также хотите:- выгодно продать- срочно выкупить- найти лучшую квартиру- заработать на инвестициях в недвижимость- сделать дизайнерский ремонт

Тогда «Моя 7Я» решит это, как для своей семьи: с любовью, заботой и желаемым результатом!

Агентство недвижимости ООО «Центр международной недвижимости Моя 7Я»УНП 193750826Лицензия: № 02240/484 выдана МЮ РБ 18.05.2024 г.Страховое свидетельство БР 0004694

Уласцівасці
Агульная плошча
260.4 м2
Жылая
74.3 м2
Кухня
46.2 м2
Участак (соткі)
20
Паверхаў
3
Год пабудовы
2018
Гатоўнасць
80%
Матэрыял сцен
Блочны
Водазабеспячэнне
Свідравіна
Адрас на мапе
вул. Цэнтральная, в. Падгор'е
Інфраструктура

Падобныя аб'екты побач

175 528 Br
1 889 Br/м2
92.9 м2
1 паверх
вул. Дружная, г.п. Смілавічы
312 911 Br
615 Br/м2
509 м2
2 паверхі
в. Карзуны
289 070 Br
4 189 Br/м2
69 м2
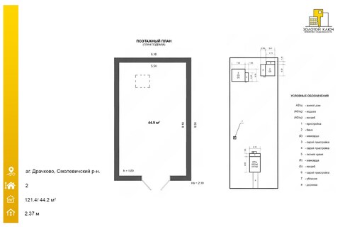
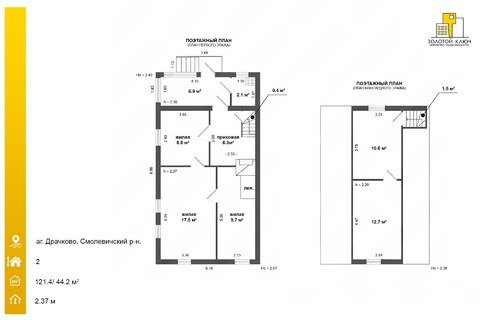
вул. Гомельская, 81, аг. Драчкава
118 906 Br
979 Br/м2
3 пак.
121.4 м2
2 паверхі
вул. Сталінская, 67, аг. Драчкава
297 712 Br
1 784 Br/м2
166.9 м2
3 паверхі
в. Дэхань
193 408 Br
1 023 Br/м2
189.1 м2
2 паверхі
Н-9437
238 408 Br
1 324 Br/м2
5+ пак.
180 м2
2 паверхі
вул. Садовая, 23, в. Натальеўск
146 025 Br
1 047 Br/м2
139.5 м2
2 паверхі
вул. Палявая, в. Ліпнікі
259 269 Br
1 549 Br/м2
167.4 м2
2 паверхі
вул. Цэнтральная, в. Старына
296 520 Br
1 244 Br/м2
238.4 м2
3 паверхі
вул. Славянская, в. Серафімава
175 826 Br
2 747 Br/м2
64 м2
2 паверхі
вул. Цэнтральная, аг. Слабада
163 906 Br
1 147 Br/м2
4 пак.
142.9 м2
2 паверхі
вул. 3-я Садовая, c.т. Мерыдыян-2002