Прадаецца дом у аграгарадку Тарасенкі плошчай 89 м² і ўчасткам 19 сотак

вул. Цэнтральная, аг. Тарасенкі, Віцебскі раён
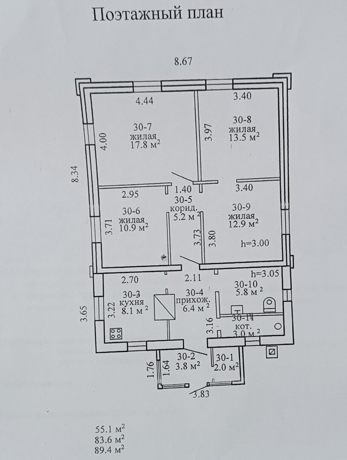
89 м2
Агульная плошча
55 м2
Жылая
8 м2
Кухня
4
Пакояў
1988
Год пабудовы
Апісанне

Продаётся жилой одноэтажный ДОМ со всеми коммуникациями в а.г.Тарасенки, Запольский с/с, Витебский район.

Дом 89,4 кв.м. 1988 года постройки, участок 0,1900га. сухой и ровный, баня, кирпичный сарай, вся территория огорожена сеткой, двор-бетонный забор, ворота металлические.

По периметру дома камеры видеонаблюдения.

Большой сад: яблони, вишни, сливы.

Городской телефон, интернет, металлическая входная дверь, окна ПВХ, четыре изолированные комнаты, кухня 8,1кв.м., санузел в доме 5,8 кв.м., душевая кабина. Отопление - газовое, твердотопливное. Двухконтурный котел(газ/вода)Vaillant, насос подавляющий давление, бойлер, новые трубы ПВХ.

Рядом остановка общественного транспорта, хорошая асфальтированная дорога. В шаговой доступности почта, магазин, ФАП, пожарная.

Производственные комплексы Ганна, ферма, лесничество. Рядом река Усвяча.

Прямая продажа. Показ в любое удобное время. Реальному покупателю разумный торг при просмотре!

Договор 118/10 от 12.03.2024

ОДО «Юриэлт», УНП 101214439

Лицензия Министерства юстиции Республики Беларусь 02240/8 от 17.02.2005 (бессрочная) на право осуществления деятельности по оказанию юридических услуг-риэлтерских услуг.

Уласцівасці
Пакояў
4
Агульная плошча
89 м2
Жылая
55 м2
Кухня
8 м2
Участак (соткі)
19
Паверхаў
1
Год пабудовы
1988
Адрас на мапе
вул. Цэнтральная, аг. Тарасенкі, Віцебскі раён
Інфраструктура
Абноўлена24.10.2025, 16:00
Нумар дамовы№118/10 от 12.03.2024
Усяго праглядаў69

Падобныя аб'екты побач

41 462 Br
494 Br/м2
3 пак.
83.9 м2
1 паверх
в. Будыслова, Віцебскі раён
43 832 Br
517 Br/м2
4 пак.
84.7 м2
2 паверхі
в. Жалезнякі, Віцебскі раён
48 866 Br
378 Br/м2
5+ пак.
129.13 м2
1 паверх
вул. Калініна, аг. Бабінічы, Віцебскі раён
50 347 Br
1 650 Br/м2
2 пак.
30.52 м2
1 паверх
вул. Завадская, Віцебск
65 155 Br
796 Br/м2
2 пак.
81.9 м2
1 паверх
вул. Дачная, Віцебск
88 256 Br
896 Br/м2
5+ пак.
98.5 м2
1 паверх
вул. Цэнтральная, в. Пушкары, Віцебскі раён
37 908 Br
886 Br/м2
3 пак.
42.8 м2
2 паверхі
c.т. Лясная палянка
79 963 Br
1 054 Br/м2
5+ пак.
75.84 м2
1 паверх
вул. Палявая, аг. Вольгава, Віцебскі раён
69 598 Br
1 268 Br/м2
3 пак.
54.9 м2
1 паверх
вул. 2-я Завадская, 45, Віцебск
88 848 Br
987 Br/м2
3 пак.
90 м2
1 паверх
вул. Меліяратараў, аг. Мазалава, Віцебскі раён
68 117 Br
3 027 Br/м2
1 пак.
22.5 м2
1 паверх
СТ Зара, Віцебскі раён
88 848 Br
1 471 Br/м2
3 пак.
60.4 м2
1 паверх
4-ы Крыштальны завулак, Віцебск