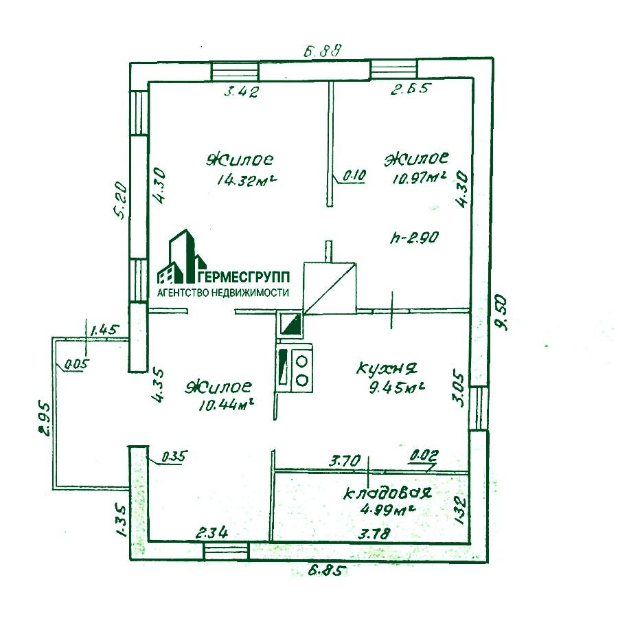
Прадаецца дом у горадзе Дзятлаве плошчай 51.2 м² і ўчасткам 11.36 сотак

вул. Катоўскага, Дзятлава
51.2 м2
Агульная плошча
35.73 м2
Жылая
9.45 м2
Кухня
1970
Год пабудовы
Апісанне

Продаётся дом г. Дятлово, расположен вблизи центра города.

Общая площадь:51,2 м2. Участок: 11,36 соток в ПНВ.

Стены - бетонные оштукатуренные, крыша шифер.

В доме имеются две печки, рядом с домом проходит газопрвод. Входная дверь ПВХ. Недавно в доме была заменена проводка. Внутри дома стены не несущие, что позволяет самостоятельно делать перепланировку по своему желанию.

В городе есть все для комфортной жизни. Все в пешей доступности - магазины, школы, детские сады, банки и поликлиника.

Дом расположен в непосредственной близости (10 км) от курортно-санаторных комплексов «Радон» и «Альфа Радон».

При необходимости поможем продать Вашу недвижимость.Покупатель не платит за услуги агентства, но приобретет юридически проверенную недвижимость!Звоните и пишите на удобный для Вас мессенджер по телефону.

Уласцівасці
Агульная плошча
51.2 м2
Жылая
35.73 м2
Кухня
9.45 м2
Участак (соткі)
11.36
Паверхаў
1
Год пабудовы
1970
Гатоўнасць
100%
Матэрыял сцен
Блочны
Водазабеспячэнне
Калодзеж
Ацяпленне
Пячное
Адрас на мапе
вул. Катоўскага, Дзятлава
Інфраструктура

Падобныя аб'екты побач

40 030 Br
609 Br/м2
65.7 м2
в. Панямонцы, Лідскі раён
51 181 Br
609 Br/м2
84 м2
вул. Цэнтральная, аг. Лайкаўшчына, Лідскі раён
25 448 Br
477 Br/м2
53.3 м2
вул. Маўчадская, аг. Дзераўная, Слонімскі раён
51 467 Br
712 Br/м2
72.3 м2
вул. Савецкая, 49, Навагрудак
45 463 Br
1 137 Br/м2
40 м2
вул. Чырвонаармейская, 18, Навагрудак
28 307 Br
629 Br/м2
45 м2
вул. Чапаева, 49, Навагрудак
28 307 Br
290 Br/м2
4 пак.
97.5 м2
1 паверх
вул. Віленская, в. Драздова, Лідскі раён
48 894 Br
290 Br/м2
168.6 м2
вул. Чапаева, 14А, Навагрудак
32 882 Br
939 Br/м2
35 м2
вул. Мічурына, 15, Навагрудак
31 166 Br
499 Br/м2
62.4 м2
вул. Слухавіцкая, 36, Навагрудак
37 028 Br
969 Br/м2
38.2 м2
вул. Мінская, 37, Навагрудак
28 593 Br
325 Br/м2
87.9 м2
вул. Мінская, Навагрудак