Прадаецца двухузроўневы катэдж у горадзе Магілёве плошчай 195 м² і ўчасткам 8 сотак

завулак Арбелі, 4, Магілёў
195 м2
Агульная плошча
111 м2
Жылая
5+
Пакояў
2.7 м
Вышыня столі
2014
Год пабудовы
Апісанне

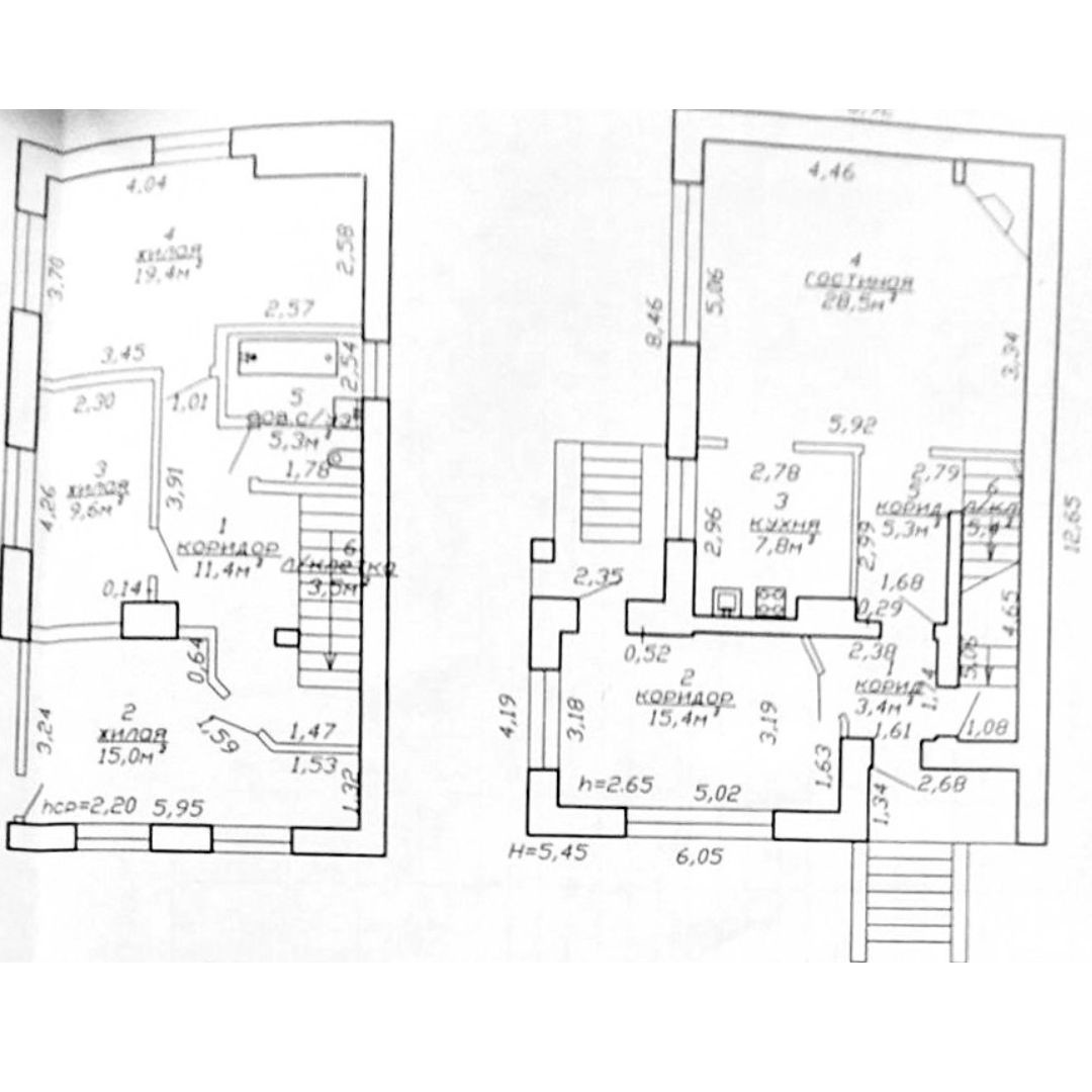
В самом центре города Могилева по пер.1-й Кузнецкий продаётся шикарный двухэтажный дом с цокольным этажем.

Дом с гаражом 2014 года постройки, расположен на участке 8 соток. 

Общая площадь 195 м2, жилая 111 м2, гараж 31м2. 

На цокольном этаже расположена:  сауна отапливаемая дровами, душ,  сан.узел. 

На первом этаже расположены: комната для гостей, кухня со столовой, камин и санузел. 

На втором этаже расположены 3 комнаты со встроенной мебелью, ванная и сан.узел.

Дом отапливается двухконтурным  газовым котлом, водопровод и канализация - центральные, материал крыши- цементно-песчаная черепица. 

На участке расположена беседка, зона барбекю.

Дом полностью продается с мебелью и техникой.

Более подробную информацию можно узнать по номеру телефона.Показ по предварительной договорённости в удобное для вас время.

Договор 136/16 от 15.08.2024

ОДО «Юриэлт», УНП 101214439,Лицензия Министерства юстиции РБ №02240/8 от 17.02.2005 года (бессрочная) на право осуществления деятельности по оказанию юридических услуг - риэлтерских услуг.

Уласцівасці
Пакояў
5+
Агульная плошча
195 м2
Жылая
111 м2
Участак (соткі)
8
Паверхаў
2
Вышыня столі
2.7 м
Год пабудовы
2014
Матэрыял сцен
Блочны
Водазабеспячэнне
Цэнтральнае
Ацяпленне
Газавае
Адрас на мапе
завулак Арбелі, 4, Магілёў
Інфраструктура
Абноўлена24.10.2025, 10:00
Нумар дамовы№136/16 от 15.08.2024
Усяго праглядаў10

Падобныя аб'екты побач

387 816 Br
982 Br/м2
4 пак.
395 м2
2 паверхі
вул. Мялеція Сматрыцкага, 4, Магілёў
507 144 Br
3 901 Br/м2
4 пак.
130 м2
2 паверхі
вул. Цэнтральная, 127, в. Цішоўка
238 656 Br
1 794 Br/м2
5+ пак.
133 м2
2 паверхі
вул. Салтанаўская, 5, Магілёў
471 346 Br
2 806 Br/м2
4 пак.
168 м2
2 паверхі
вул. Кісялёва, 7, Магілёў
313 236 Br
2 344 Br/м2
4 пак.
133.61 м2
вул. Цяністая, Магілёў
313 236 Br
3 101 Br/м2
3 пак.
101 м2
1 паверх
вул. Андрэя Белавусава, Рагачоў
238 656 Br
1 326 Br/м2
5+ пак.
180 м2
2 паверхі
вул. Садовая, 23, в. Натальеўск
387 518 Br
2 571 Br/м2
150.7 м2
1 паверх
вул. Мінская, Чэрвень
235 673 Br
3 264 Br/м2
2 пак.
72.2 м2
1 паверх
Н-2005
280 421 Br
2 254 Br/м2
124.4 м2
1 паверх
вул. Цэнтральная, в. Падліп'е
238 358 Br
1 636 Br/м2
145.7 м2
1 паверх
вул. Новая, в. Паддуб'е
262 223 Br
1 375 Br/м2
190.7 м2
2 паверхі
вул. Астроўскага, Жодзіна