Прадаецца двухузроўневы катэдж у вёсцы Плябанцы плошчай 263.3 м² і ўчасткам 22.2 соткі

вул. Цэнтральная, в. Плябанцы, Мінскі раён
263.3 м2
Агульная плошча
105.4 м2
Жылая
9.8 м2
Кухня
3
Пакояў
2.7 м
Вышыня столі
2005
Год пабудовы
Апісанне

д.Плебанцы 16 км от Минска. Участок 22.2 сотки, пожизненно наследуемое владение.

На территории расположены: коттедж, летняя кухня, хозпостройки.

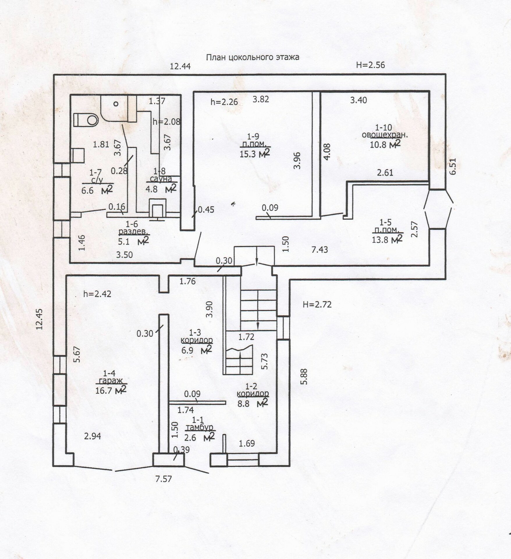
1. Коттедж на 4 уровня:

- 1 уровень – цоколь. Находятся: гараж, овощехранилище, сауна, сан.узел и котельная.

- 2 уровень – гостиная 50м2 с камином, кухня, ванная, с/узел и открытая терраса.

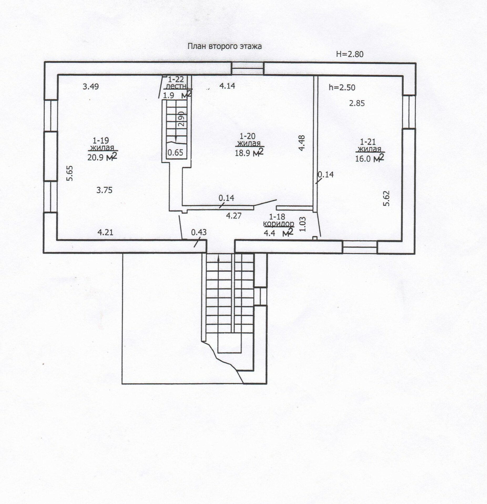
- 3 уровень – 3 жилых комнаты.

- 4 уровень - мансарда.

- общая площадь - 236,3 м2 (СНБ), общая отапливаемая – 163,8 м2, жилая – 105,9м2.

- вода центральная, канализация местная, природный газ у дома, телефон.

2. Летняя кухня:

печка, проведена вода и канализация, общей площадью 51 м2. В пристройке - банька с печкой, погреб,

общей площадью 40 м2. Дерево, обшито сайдингом. Балонный газ.

3. Сарай блочный, площадью 57 м2.

Остановка автобуса в 300 м, маршрутка в 500 м в аг. Чуриловичи. Здесь же фельдшерский пункт, школа, д/сад, почта, дом быта, 4 магазина.

Дом требует ремонта. По факту вы покупаете стены дома, большой участок земли, хозпостройки и близость к Минску.

Рассмотрим покупку или обмен на квартиру в Минске.

Уласцівасці
Пакояў
3
Агульная плошча
263.3 м2
Жылая
105.4 м2
Кухня
9.8 м2
Участак (соткі)
22.2
Паверхаў
2
Вышыня столі
2.7 м
Год пабудовы
2005
Матэрыял сцен
Блочны
Водазабеспячэнне
Цэнтральнае
Ацяпленне
Пячное
Адрас на мапе
вул. Цэнтральная, в. Плябанцы, Мінскі раён
Інфраструктура
Абноўлена24.10.2025, 12:00
Нумар дамовы№б/н от 16.10.2025
Усяго праглядаў115

Падобныя аб'екты побач

130 046 Br
1 700 Br/м2
76.5 м2
2 паверхі
вул. Садовая, в. Беліца, Мінскі раён
259 802 Br
1 090 Br/м2
238.4 м2
3 паверхі
вул. Славянская, в. Серафімава, Мінскі раён
260 091 Br
5 161 Br/м2
50.4 м2
1 паверх
вул. Высокая, аг. Сеніца, Мінскі раён
286 100 Br
2 345 Br/м2
122 м2
2 паверхі
в. Закружка, Мінскі раён
130 046 Br
2 395 Br/м2
54.3 м2
2 паверхі
в. Закружка, Мінскі раён
187 555 Br
992 Br/м2
189.1 м2
2 паверхі
в. Забалацце, Мінскі раён
170 504 Br
2 619 Br/м2
2 пак.
65.1 м2
1 паверх
в. Прылучкі, Мінскі раён
288 990 Br
3 959 Br/м2
3 пак.
73 м2
2 паверхі
вул. Васняцова, 105, Мінск
257 201 Br
8 573 Br/м2
2 пак.
30 м2
1 паверх
в. Малінаўка, Мінскі раён
Малінаўка ~1025 метраў
170 504 Br
5 646 Br/м2
30.2 м2
1 паверх
вул. Лібава-Роменская, 9, Мінск
Кавальская Слабада ~968 метраў
230 903 Br
5 846 Br/м2
1 пак.
39.5 м2
1 паверх
вул. Лібава-Роменская, 5, Мінск
Кавальская Слабада ~947 метраў
317 889 Br
1 883 Br/м2
168.8 м2
1 паверх
завулак Соф'і Кавалеўскай, 23, Мінск