Прадаецца дом у горадзе Вілейцы плошчай 40.4 м² і ўчасткам 5.6 сотак

вул. Лаўрыновіча, Вілейка
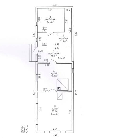
40.4 м2
Агульная плошча
20 м2
Жылая
10 м2
Кухня
1970
Год пабудовы
Апісанне

Дом готовый для проживания в черте города Вилейка!

❤️Одноэтажный жилой дом готовый для проживания в черте города Вилейка!

- Общая площадь дома составляет 40,4 м2, из них жилая 22 м2 и кухня 10 м2.

- Отопление печное, водоснабжение центральное. канализация центральная рядом с домом, Газ тоже по улице.

- Бревенчатый дом, шалеваный, 1970 года постройки. В доме 2 жилые комнаты, что позволит свободно разместиться семье. Дом очень ухоженный как внутри, так и с наружи. Продаётся со всей мебелью и техникой. Есть телефон и интернет.

- Не так давно была произведена замена шифера на новый.

- Площадь участка 5,6 сот. На участке имеются гараж под авто, сарай, хорошая баня, дровница.

- Весь участок огорожен, есть не большой погреб.

- На участке есть плодоносящие деревья, виноградники.

- Дом расположен в благоустроенном районе города с развитой инфраструктурой и удобным транспортным сообщением.

- Хорошее месторасположение позволит Вам быстро добраться до необходимого места: остановка общественного транспорта расположена рядом с домом.

- В 15 минутах ходьбы находится железнодорожный вокзал, а также лес, где есть много грибов и ягод.

- В шаговой доступности находится всё необходимое для повседневной жизни: продуктовый магазин «Евроопт», детский сад, школа, а также зоомагазин, почта, аптеки, парикмахерская, банк и многое другое.

- Центральный парк порадует как взрослых, так и детей прогулками на свежем воздухе. Там Вы найдёте детские игровые площадки, верёвочный парк и кафе.

- Вилейка выделяется своей историей и достопримечательностями, такими как Костёл Воздвижения Святого креста, Церковь Преподобной Марии Египетской и, конечно же, Вилейское водохранилище, где Вы сможете отдыхать в летнее время года. Всего в 500 метрах от дома расположена полноводная река Вилия.

❤️Расположение дома обеспечит мобильность, а наличие мебели позволит Вам переехать быстро и без лишних затрат!

❤️ Мы с радостью покажем Вам данный объект и сделаем Вас его счастливыми хозяевами!

А также хотите:

- выгодно продать

- срочно выкупить

- найти лучшую квартиру

- заработать на инвестициях в недвижимость

- сделать дизайнерский ремонт

Тогда «Моя 7Я» решит это, как для своей семьи: с любовью, заботой и желаемым результатом!

Агентство недвижимости ООО «Центр международной недвижимости Моя 7Я»УНП 193750826Лицензия: № 02240/484 выдана МЮ РБ 18.05.2024 г.Страховое свидетельство БР 0004913

Уласцівасці
Агульная плошча
40.4 м2
Жылая
20 м2
Кухня
10 м2
Участак (соткі)
5.6
Паверхаў
1
Год пабудовы
1970
Гатоўнасць
100%
Матэрыял сцен
Драўляны
Водазабеспячэнне
Цэнтральнае
Ацяпленне
Пячное
Адрас на мапе
вул. Лаўрыновіча, Вілейка
Інфраструктура

Падобныя аб'екты побач

34 306 Br
927 Br/м2
37 м2
1 паверх
вул. Лаўрыновіча, Вілейка
26 550 Br
590 Br/м2
45 м2
1 паверх
вул. 1 Мая, Вілейка
55 187 Br
757 Br/м2
72.9 м2
1 паверх
вул. Цэнтральная, в. Порса
27 445 Br
405 Br/м2
67.7 м2
1 паверх
вул. Каралёва, 1, Вілейка
25 356 Br
375 Br/м2
67.7 м2
1 паверх
вул. Каралёва, Вілейка
28 339 Br
515 Br/м2
55 м2
1 паверх
вул. Чарняхоўскага, Вілейка
43 255 Br
560 Br/м2
77.3 м2
1 паверх
вул. Чайкоўскага, аг. Шылавічы
41 465 Br
585 Br/м2
70.9 м2
1 паверх
вул. Палявая, в. Ілішчавічы
53 696 Br
2 256 Br/м2
23.8 м2
1 паверх
вул. Сонечная, в. Касута
35 797 Br
331 Br/м2
108.1 м2
1 паверх
вул. Цэнтральная, аг. Нарач
50 713 Br
791 Br/м2
64.1 м2
1 паверх
вул. Піянерская, 23, аг. Нарач
53 696 Br
675 Br/м2
2 пак.
79.5 м2
1 паверх
вул. Беларуская, в. Мячаі