Прадаецца дом у горадзе Баранавічах плошчай 61.3 м² і ўчасткам 6 сотак

вул. Горкага, 73, Баранавічы
61.3 м2
Агульная плошча
43.8 м2
Жылая
5.3 м2
Кухня
3
Пакояў
Апісанне

Продается часть дома в статусе квартиры по ул. Горького. Две смежные квартиры с общей стеной, в которой можно сделать дверной проем и объединить в одну 3-комнатную квартиру. Имеется разрешение на реконструкцию.

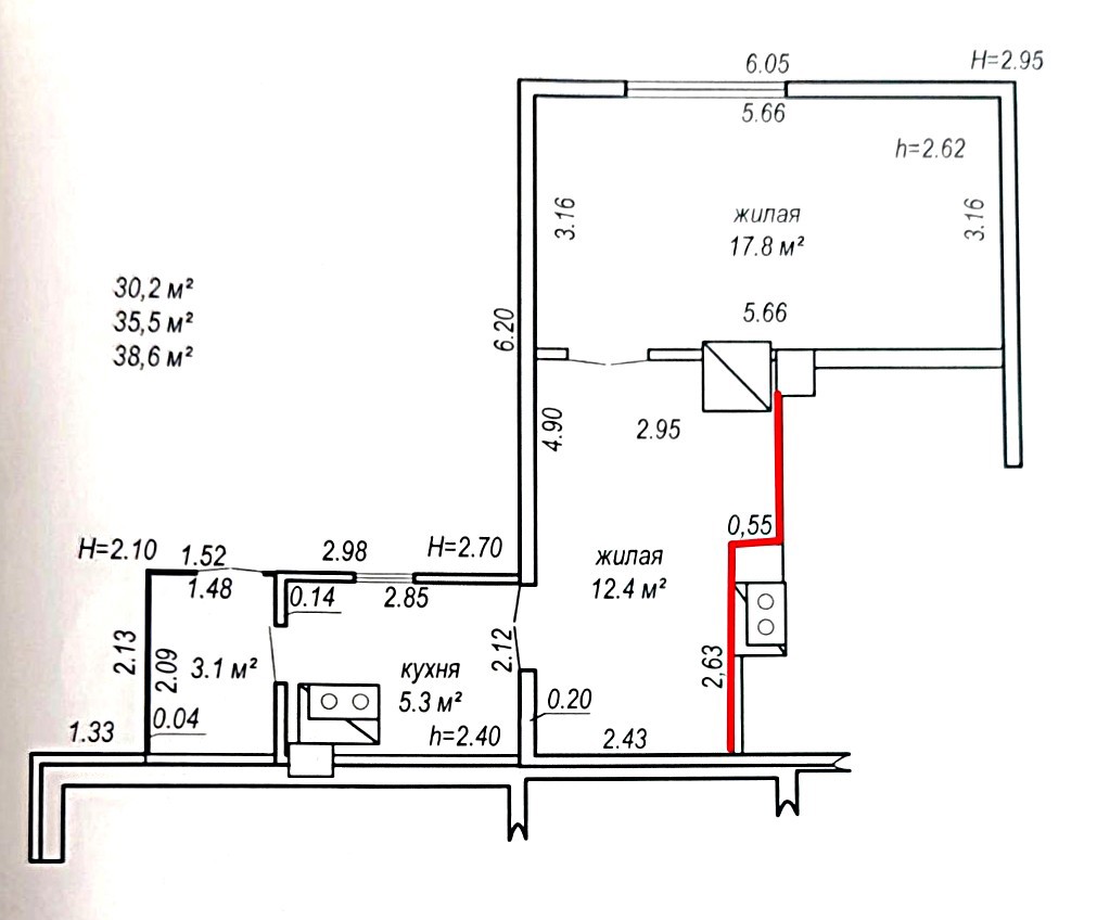
Общая площадь по СНБ 2-комнатной квартиры - 38,6 м², жилая - 30,2 м², кухня - 5,3 м².

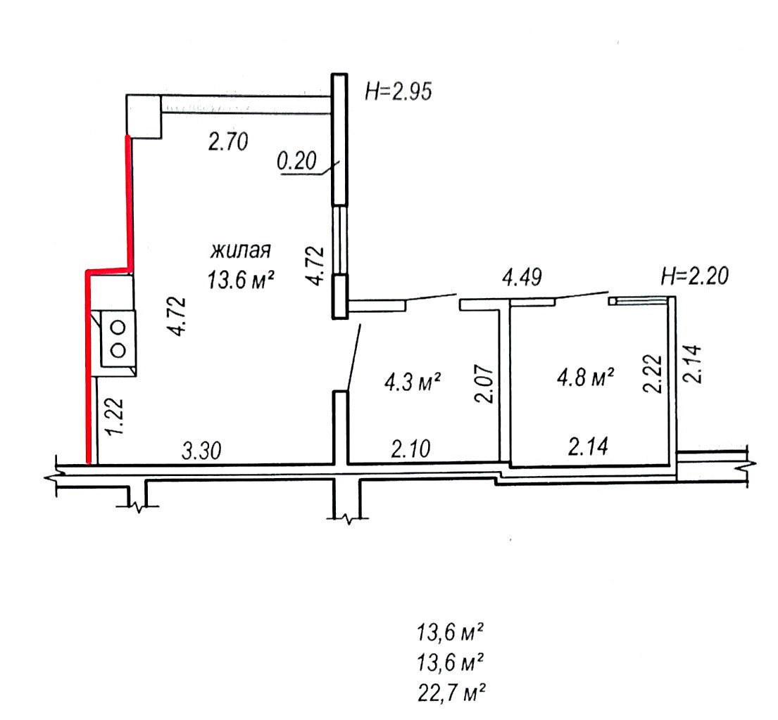
Общая площадь по СНБ 1-комнатной квартиры - 22,7 м², жилая - 13,6 м².

Коммуникации:

* Вода - центральная;

* Канализация - местная;

* С/у - на улице;

* Отопление - печное;

* Газ - подведен к дому, необходимо подключиться;

* Электричество, заведено оптоволокно.

Участок примерно 6 соток (в пользовании двух продаваемых квартир), имеется два хоз. блока из дерева.

Асфальтированные подъездные пути.

В шаговой доступности есть все необходимое для комфортного проживания: продуктовые магазины, школа № 14, ЕРСЦ, БТИ, Центральная поликлиника, остановка общественного транспорта.

Подробнее по телефону, звоните!

Уласцівасці
Пакояў
3
Агульная плошча
61.3 м2
Жылая
43.8 м2
Кухня
5.3 м2
Участак (соткі)
6
Паверхаў
1
Матэрыял сцен
Драўляны
Водазабеспячэнне
Цэнтральнае
Ацяпленне
Пячное
Адрас на мапе
вул. Горкага, 73, Баранавічы
Інфраструктура
Абноўлена27.01.2026, 18:34
ID объявления11821
Нумар дамовы№111/11 от 21.08.2025
Усяго праглядаў206

Падобныя аб'екты побач

61 266 Br
1 660 Br/м2
2 пак.
36.9 м2
1 паверх
вул. Царука, 35, Баранавічы
52 718 Br
3 012 Br/м2
1 пак.
17.5 м2
1 паверх
5-ы завулак Шаўчэнка, Баранавічы
68 390 Br
717 Br/м2
5+ пак.
95.4 м2
1 паверх
2-і Сталярны завулак, Баранавічы
48 443 Br
1 167 Br/м2
2 пак.
41.5 м2
1 паверх
вул. Анісімавіцкая, Баранавічы
71 240 Br
950 Br/м2
4 пак.
75 м2
1 паверх
вул. Слаўная, Баранавічы
71 240 Br
678 Br/м2
2 пак.
105 м2
1 паверх
1-ы Прыгарадны завулак, 26, Баранавічы
48 443 Br
672 Br/м2
3 пак.
72.1 м2
1 паверх
вул. Школьная, в. Скробава, Баранавіцкі раён
39 892 Br
530 Br/м2
2 пак.
75.2 м2
вул. Шашэйная, аг. Русінавічы, Ляхавіцкі раён
48 443 Br
1 086 Br/м2
44.6 м2
вул. Ніжняя, Слонім
56 422 Br
381 Br/м2
148 м2
вул. Рачная, 19, Слонім
39 894 Br
571 Br/м2
69.9 м2
вул. Завадская, 143, в. Петралевічы 2, Слонімскі раён
34 195 Br
556 Br/м2
61.5 м2
1-ы Віленскі завулак, Слонім