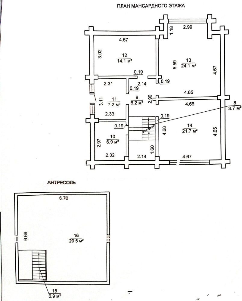
Прадаецца трохузроўневы катэдж у вёсцы Сілічы плошчай 205.2 м² і ўчасткам 11 сотак
Срубы - это решение вне времени! Для настоящих ценителей основательности и гармонии с природой! Всего лишь 700 метров по ухоженной лесной дорожке до подъёмника горнолыжного курорта Силичи или 200 метров до медицинского процедурного центра с массажем, светолечением, солевыми ваннами и иными процедурами. Рядом есть ресторан, озеро с рыбалкой, захватывающие путешествия на квадроцикле и картинге, зимой катание на горных лыжах и коньках. Купите этот дом и улучшите здоровье и качество своей жизни и жизни своих близких! Данный дом создан из бруса архангельской сосны 32 диаметра зимней грамотной ручной рубки ручной зимней цилиндровки . Установлены трёхкамерные стеклопакеты из лиственницы с аргоном. Мягкая черепица katepal послужит многие десятилетия не нарушая природного баланса и не нанося вреда окружающей среде. Бревно, из которого сложен дом, обеспечивает идеальный температурный режим и баланс влажности, которые совпадают с потребностями нашего тела: быть в тепле зимой и в прохладе летом. И даже если сам человек это пока не осознает, его организм это прочувствует. Бревно выделяет смолистые фитонциды, благотворно влияющие на легочную и сердечно-сосудистую систему, поэтому у человека, живущего в рубленом доме, уменьшается кашель, уходит одышка и улучшается общее состояние здоровья. Отступают хроническая усталость и постоянный стресс. Дом построен по проекту знаменитого архитектора. Аналогов в Республике Беларусь единицы. При строительстве уделялось повышенное внимание к качеству строительства, а само здание получилось просторным - 250 кв.м. , три этажа и 4-5 жилых комнат. Дом под чистовую отделку, что позволит воплотить ваши персональные желания в отделке. Дом создавался из лучших материалов и обеспечит Вам уют и гармонию. Стены покрашены, установлена кованая лестница, имеется утепление крыши и межкомнатные перекрытия. На участке установлен кованный навес на четыре машины, открытый бассейн с системой очистки воды и фильтрации. Идеально ухоженный газон. Плодоносят голубика, персики яблоня, вишня и слива. На участке установлена закрытая беседка из латвийского клинкерного кирпича с барбекю, коптильней, русской печкой и казаном. Дверцы с закаленным стеклом из славацкого чугуна. Участок граничит с лесом и с прямым выходом к горнолыжному курорту Силичи. В лесу растут грибы, клюква, брусника. Поселитесь в этом доме и ощутите на себе целебную силу жизни!
 
                                         
                 
                 
                 
                 
                 
                 
                 
                 
                 
                 
                 
                 
                 
                 
                 
                 
                 
     
                                             
                                             
                                             
                                             
                                             
                                             
                                             
                                             
                                             
                                             
                                             
                                             
                                             
                                             
                                             
                                             
                                             
                                             
                                             
                                             
                                             
                                             
                                             
                                             
                                             
                                             
                                             
                                             
                                             
                                             
                                             
                                             
                                             
                                             
                                             
                                             
                                             
                                             
                                             
                                             
                                             
                                             
                                             
                                             
                                             
                                             
                                             
                                             
                                             
                                             
                                             
                                             
                                             
                                             
                                             
                                             
                                             
                                             
                                             
                                             
                                             
                                             
                                             
                                             
                                             
                                             
                                             
                                             
                                             
                                             
                                             
                                             
                                             
                                             
                                             
                                             
                                             
                                             
                                             
                                             
                                             
                                             
                                             
                                             
                                             
                                             
                                             
                                             
                                             
                                             
                                             
                                             
                                             
                                             
                                             
                                             
                                             
                                             
                                             
                                             
                                             
                                             
                                             
                                             
                                             
                                             
                                             
                                             
                                             
                                             
                                             
                                             
                                             
                                             
                                             
                                             
                                             
                                             
                                            