Прадаецца дом у вёсцы Навасёлкі плошчай 196 м² і ўчасткам 18 сотак

вул. Бароўскага, в. Навасёлкі, Мінскі раён
196 м2
Агульная плошча
2015
Год пабудовы
Апісанне

Продается дом (незавершенное законсервированное строение) в д. Новоселки, в 14 км. от города Минска, Логойское направление.

Дом (готовность 84 процента) - 196,2 кв.м., 2015 года постройки. Стены – газосиликатные блоки, фундамент - блоки фундаментные, крыша - андулин, окна – деревянные стеклопакеты, канализация местная. Газ подведен к дому, вода, свет введены в дом. Проведено оптоволокно.

Асфальтированная дорога до участка. Участок 18 соток, ровный.

Хорошее транспортное сообщение, до Минска на машине 15 минут, рядом выезд на второй МКАД, ходят автобусы и маршрутки.

Дом расположен в живописном месте рядом с Острошицким Городком, в экологически чистом районе с развитой инфраструктурой. В Острошицком-Городоке есть все необходимое для жизни: школа с бассейном, детский сад, почта, банк, амбулатория, магазины.

Рядом расположены спорткомплекс «Раубичи», ГК «Силичи», «Логойск», Дубровское водохранилище, Вяча.

Деревня Новосёлки — это комфортное место для постоянного проживания с близостью к Минску и удобным доступом ко всем городским удобствам.

Приглашаем на просмотр!

Уласцівасці
Агульная плошча
196 м2
Участак (соткі)
18
Год пабудовы
2015
Гатоўнасць
80%
Матэрыял сцен
Блочны
Водазабеспячэнне
Цэнтральнае
Ацяпленне
Адсутнічае
Адрас на мапе
вул. Бароўскага, в. Навасёлкі, Мінскі раён
Інфраструктура
Абноўлена08.11.2025, 17:30
Нумар дамовы63/1 от 16.07.2025
Усяго праглядаў212

Падобныя аб'екты побач

219 764 Br
2 661 Br/м2
82.6 м2
1 паверх
вул. Кавалькова, в. Аколіца, Мінскі раён
343 290 Br
3 121 Br/м2
3 пак.
110 м2
1 паверх
вул. Ціхая, в. Крапужына, Лагойскі раён
337 422 Br
1 961 Br/м2
3 пак.
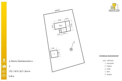
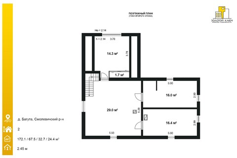
172.1 м2
вул. Цэнтральная, в. Багута, Смалявіцкі раён
160 000 Br
2 974 Br/м2
3 пак.
53.8 м2
1 паверх
СТ Вярагі, Лагойскі раён
161 082 Br
1 683 Br/м2
95.7 м2
вул. Азёрная, 15А, в. Тадуліна, Смалявіцкі раён
268 470 Br
2 450 Br/м2
109.6 м2
2 паверхі
вул. Зялёная, в. Аўгустова, Лагойскі раён
249 399 Br
вул. Школьная, в. Юхнаўка, Мінскі раён
349 158 Br
3 361 Br/м2
103.9 м2
1 паверх
вул. Вайсковая, 9, аг. Калодзішчы, Мінскі раён
162 256 Br
1 775 Br/м2
91.4 м2
1 паверх
вул. Садовая, аг. Косіна, Лагойскі раён
352 092 Br
2 801 Br/м2
5+ пак.
125.7 м2
2 паверхі
вул. Бярозавая, аг. Калодзішчы, Мінскі раён
321 284 Br
1 483 Br/м2
216.6 м2
2 паверхі
вул. Цэнтральная, 1, в. Ліпнікі, Смалявіцкі раён
183 381 Br
2 082 Br/м2
1 пак.
88.1 м2
2 паверхі
вул. Ясная, 7А, Мінск