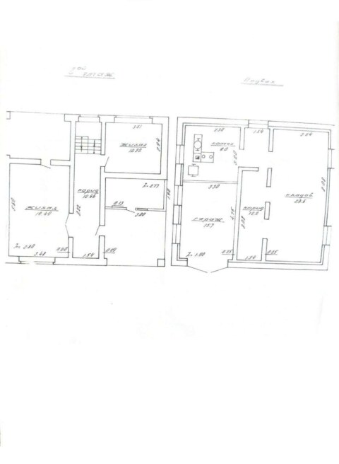
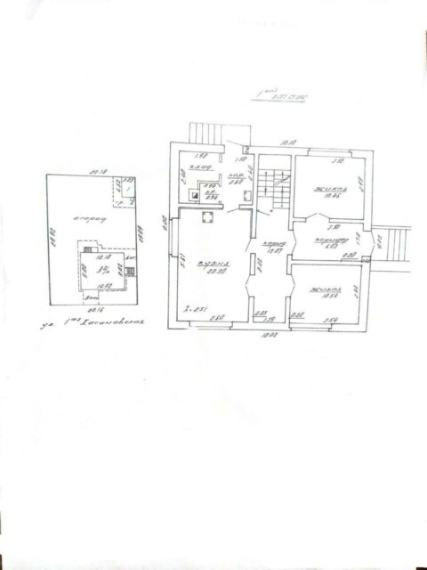
Прадаецца дом у горадзе Лідзе плошчай 102.8 м² і ўчасткам 6.5 сотак

вул. Карла Маркса, Ліда
102.8 м2
Агульная плошча
68.3 м2
Жылая
10.4 м2
Кухня
1987
Год пабудовы
Апісанне

Продается дом, полностью готов к круглогодичному проживанию.Основные характеристики:- 3 спальни и просторная гостиная с действующим камином- 2 ванные комнаты:- 1: душевая кабина, унитаз, мойка- 2: ванна, умывальник, вывод под стиральную машинуПросторная кухня с новой газовой плитой.Преимущества участка:- Площадь участка: 6.5 соток- Летняя кухня с баней, сарай для садовых принадлежностей- Большой объем дров, курятник (не портит вид и не мешает отдыху во дворе)- Зона отдыха за домом (летом можно ставить лавочку и отдыхать в тени)- Просторная веранда и беседка (построена в 2023 году летом)- Очаг для приготовления в казане, зона для барбекю- Место на газоне для установки бассейна и качелейНа участке:- Клубника, малина, смородина (красная и черная)- 3 яблони, черешня, слива, груши, жимолость- Розы, гортензия, лаванда- Залит фундамент под гараж с разрешением для строительства- Огорожен каменным и металлопрофильным забором- Имеется колодец и 2 спутниковые антенныУдобства и особенности:- Септик на 8 кубов- Отопление - газовый котел (теплый пол в коридоре и ванных комнатах)- Подвал со светом, под кухней- Возможность сделать 1 большую или 2 средних комнаты на 2 этаже (установлено пластиковое окно)- Участок поднят выше дороги - вода не стекает.Инфраструктура:- Вся инфраструктура в шаговой доступности: школы (№ 16, 14, 10), детские сады, магазины (Евроопт, Копеечка, Варшавянка и др.)- Остановка автобуса № 9 в 2 минутах ходьбы- До автовокзала и ж/д вокзала 15 минут пешкомДополнительные преимущества:- Поможем оформить кредит на покупку- Покупатель не оплачивает услуги агентства. Поможем продать вашу недвижимость для покупки данной, также помощь и сопровождение в преобретении в кредит, сотрудничаем со всеми банками республики Беларусь.Приобретение квартиры, дома или коммерческой недвижимости – это важный шаг, и мы знаем, насколько важно, чтобы сделка была безопасной, а процесс – понятным и удобным. ООО “Эстейт Компани” – ваш надежный партнер в мире недвижимости. Мы предлагаем объекты в Слониме, Новогрудке, Лиде и других городах Беларуси. - Гарантируем безопасность сделки -Полное юридическое сопровождение - Работаем по лицензии Министерства юстиции РБ №02240/394 Наша цель – не просто продать вам недвижимость, а помочь вам найти идеальный объект без рисков и скрытых нюансов. Офисы: г. Лида, ул. Чапаева 18; г. Слоним, пер. Дружбы 1; г. Новогрудок, ул. Волчецкого27Б Свяжитесь с нами сегодня и получите консультацию эксперта!

Уласцівасці
Агульная плошча
102.8 м2
Жылая
68.3 м2
Кухня
10.4 м2
Участак (соткі)
6.5
Паверхаў
1
Год пабудовы
1987
Гатоўнасць
100%
Матэрыял сцен
Іншае
Водазабеспячэнне
Цэнтральнае
Ацяпленне
Газавае
Адрас на мапе
вул. Карла Маркса, Ліда
Інфраструктура
Абноўлена07.08.2025, 00:30
Нумар дамовы276/2 от 20.10.2023
Усяго праглядаў174

Падобныя аб'екты побач

205 359 Br
1 998 Br/м2
4 пак.
102.8 м2
вул. Карла Маркса, Ліда
117 897 Br
2 466 Br/м2
4 пак.
47.8 м2
1 паверх
Школьны завулак, Ліда
162 514 Br
1 477 Br/м2
3 пак.
110 м2
1 паверх
вул. Дзяржынскага, Ліда
117 897 Br
1 426 Br/м2
4 пак.
82.7 м2
1 паверх
вул. Дзімітрава, 22, Ліда
192 062 Br
2 624 Br/м2
3 пак.
73.2 м2
1 паверх
2-гі завулак Дзяржынскага, Ліда
164 582 Br
1 952 Br/м2
84.3 м2
1 паверх
вул. Дзяржынскага, 7, Ліда
156 604 Br
2 691 Br/м2
58.2 м2
1 паверх
2-гі завулак Дзяржынскага, Ліда
147 740 Br
838 Br/м2
176.3 м2
вул. 1-я Хасанаўская, Ліда
147 740 Br
838 Br/м2
176.3 м2
2 паверхі
вул. 1-я Хасанаўская, 35, Ліда
132 966 Br
1 463 Br/м2
90.9 м2
1 паверх
вул. Клімко, Ліда
271 842 Br
1 837 Br/м2
148 м2
2 паверхі
пр. Перамогі, Ліда
236 384 Br
2 586 Br/м2
91.4 м2
вул. Говарава, 21, Ліда