Прадаецца двухузроўневы катэдж у горадзе Гомелі плошчай 181 м² і ўчасткам 7.41 сотка

вул. Лазо, Гомель
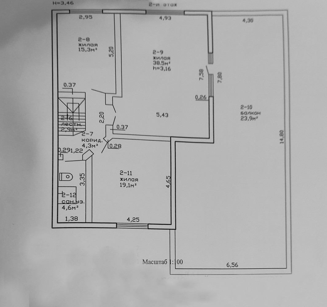
181 м2
Агульная плошча
111.6 м2
Жылая
23.1 м2
Кухня
4
Пакояў
2000
Год пабудовы
Апісанне

Просторный дом в уютном тихом месте одного из самого развитого района города!

∗ ∗ ∗ ∗ ∗ ∗ ∗ ∗ ∗ ∗ ∗ ∗ ∗ ∗ ∗ ∗ ∗ ∗ ∗ ∗ ∗ ∗ ∗ ∗ ∗ ∗ ∗

▶ Стены кирпич.

▶ Перекрытия блочные.

▶ Крыша металлочерепица.

▶ Окна ПВХ.

▶ Отопление газовое.

▶ Вода и канализация центральные

▶ Площадь по СНБ - 181, Общая - 157,1, жилая - 111,6, кухня - 23,1

▶ Высота потолков - 3,2 м.

∗ ∗ ∗ ∗ ∗ ∗ ∗ ∗ ∗ ∗ ∗ ∗ ∗ ∗ ∗ ∗ ∗ ∗ ∗ ∗ ∗ ∗ ∗ ∗ ∗ ∗ ∗

Удобные по метражу комнаты и хорошая планировка не оставит Вас равнодушным.

За счет высоких потолков и больших окон дом всегда полон света.

Ремонт выполнен из качественных материалов.

Два санузла.

Просторная кухня оборудованная хорошей техникой для удобства хозяйки.

Электрические откатные ворота, душ на заднем дворе.

В доме установлены кондиционеры.

Видеодомофон.

Функциональная крыша которую легко преобразовать в шикарное место с бассейном и зоной отдыха!

∗ ∗ ∗ ∗ ∗ ∗ ∗ ∗ ∗ ∗ ∗ ∗ ∗ ∗ ∗ ∗ ∗ ∗ ∗ ∗ ∗ ∗ ∗ ∗ ∗ ∗ ∗

Просторный гараж как минимум на две машины и местами для хранения. 

Приглашаем к просмотрам! Торг будет уместен.

Уласцівасці
Пакояў
4
Агульная плошча
181 м2
Жылая
111.6 м2
Кухня
23.1 м2
Участак (соткі)
7.41
Паверхаў
2
Год пабудовы
2000
Гатоўнасць
100%
Матэрыял сцен
Цагляны
Водазабеспячэнне
Цэнтральнае
Ацяпленне
Цэнтральнае
Каналізацыя
Цэнтральная
Адрас на мапе
вул. Лазо, Гомель
Інфраструктура

Падобныя аб'екты побач

253 721 Br
3 383 Br/м2
3 пак.
75 м2
1 паверх
вул. Сацыялістычная, 71А, Гомель
476 084 Br
2 870 Br/м2
5+ пак.
165.9 м2
2 паверхі
Рачны завулак, 50А, Гомель
444 725 Br
4 787 Br/м2
3 пак.
92.9 м2
1 паверх
вул. Мітрапаліта Філарэта, 2, Гомель
313 588 Br
1 576 Br/м2
5+ пак.
199 м2
2 паверхі
вул. М.Я. Салтыкова-Шчадрына, 11, Гомель
242 318 Br
3 235 Br/м2
4 пак.
74.9 м2
1 паверх
вул. Ляшчынская, 55, Гомель
484 636 Br
1 701 Br/м2
3 пак.
284.9 м2
1 паверх
вул. Даўгабродская, 40, Гомель
282 229 Br
909 Br/м2
5+ пак.
310.5 м2
2 паверхі
вул. Пасялковая, 183, Гомель
456 128 Br
3 168 Br/м2
5+ пак.
144 м2
2 паверхі
вул. Палявая, 12, аг. Краснае, Гомельскі раён
285 080 Br
1 335 Br/м2
4 пак.
213.6 м2
2 паверхі
вул. Фізкультурная, Гомель
270 826 Br
1 855 Br/м2
4 пак.
146 м2
2 паверхі
Гомель
228 064 Br
1 276 Br/м2
4 пак.
178.8 м2
1 паверх
вул. Войкава, 32, Добруш
213 810 Br
1 549 Br/м2
5+ пак.
138 м2
2 паверхі
вул. Дабравольскага, 8, Жлобін