Прадаецца дом у вёсцы Холма плошчай 314 м² і ўчасткам 14.4 соткі

вул. Прывольная, 37, в. Холма, Дзяржынскі раён
314 м2
Агульная плошча
271.1 м2
Жылая
40 м2
Кухня
2017
Год пабудовы
Апісанне

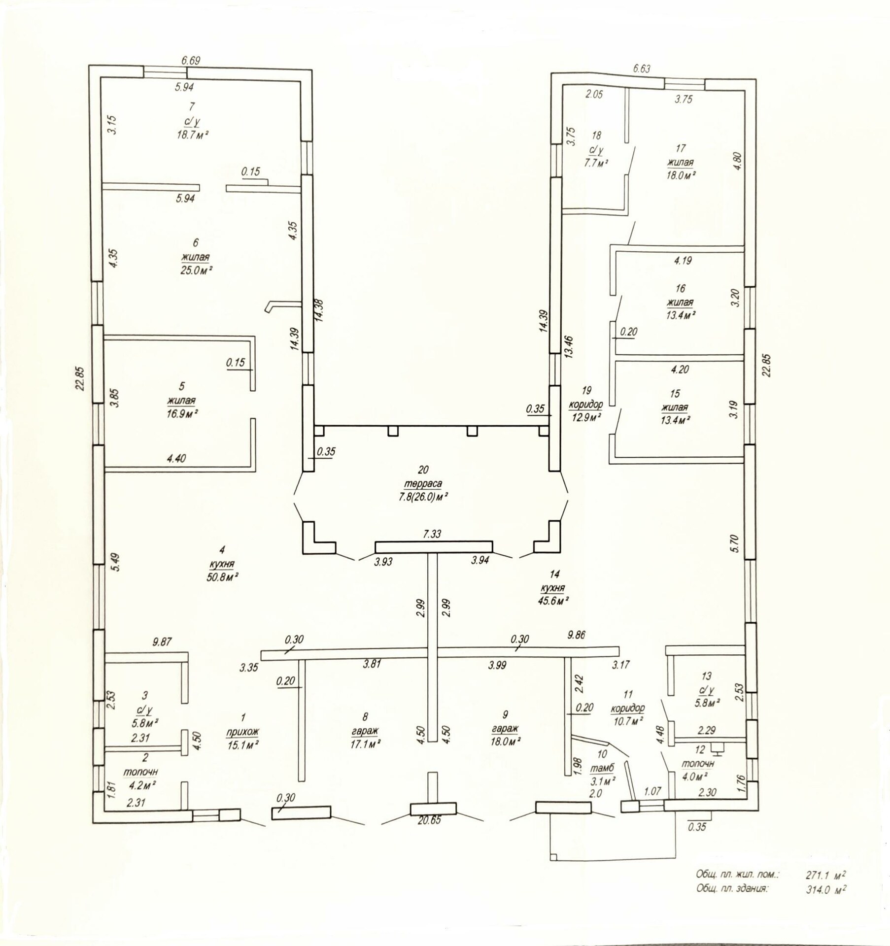
Дом для большой и дружной семьи в 17 км от МКАД в Брестском направлении.

Состоит из 2-х автономных, в плане коммуникаций, половин. Утеплен, оштукатурен, в отделке дома использованы качественные материалы. Правая половина дома готова к проживанию. Просторная кухня-гостиная (45,6кв.м.) отапливается теплым полом. Кухонный гарнитур со встроенной техникой, остается новому владельцу. С кухни-гостиной можно попасть на уютную террасу – общую для двух половин дома. В двух комнатах (по 13,4кв.м.) правой половины сделан ремонт и они так же готовы к проживанию. Два гаража удобно встроены в дом, имеют независимые входы с жилых помещений.

Левая половина дома требует внутренней отделки. Основные черновые работы сделаны: газ введен, все коммуникации разведены и дальнейший ремонт можно делать по своему вкусу. По договоренности собственник может оставить большое количество строительных материалов, сантехники и др..

Земельный участок 14,4 соток в частной собственности с ровным ухоженным газоном.

В деревне Холма активно развита коттеджная застройка. Хорошее транспортное сообщение – основная дорога по брестской скоростной трассе, ходит маршрутка. Развита инфраструктура: есть продуктовые магазины, работает Е-доставка от "Евроопта"; поликлиника, банк, почта, детсад, школа, гимназия находятся в г. Фаниполь.

Необходимо продать свою недвижимость для покупки этого дома, свяжитесь с нашим специалистом, звоните, пишите нам в удобный для Вас мессенджер: Viber | Telegram | WhatsApp. Мы решим Ваш жилищный вопрос на самых выгодных для Вас условиях!

Частное унитарное предприятие «Дианэст», УНП 190124316, лицензия №02240/54 от 06.06.2005. Договор №45/4 от 24.01.2023

Уласцівасці
Агульная плошча
314 м2
Жылая
271.1 м2
Кухня
40 м2
Участак (соткі)
14.4
Паверхаў
1
Год пабудовы
2017
Гатоўнасць
100%
Матэрыял сцен
Блочны
Водазабеспячэнне
Цэнтральнае
Ацяпленне
Газавае
Адрас на мапе
вул. Прывольная, 37, в. Холма, Дзяржынскі раён
Інфраструктура
Абноўлена17.10.2025, 17:30
Нумар дамовы45/4 от 24.01.2023
Усяго праглядаў285

Падобныя аб'екты побач

288 933 Br
956 Br/м2
302.3 м2
2 паверхі
вул. Садовая, аг. Тамковічы, Дзяржынскі раён
353 501 Br
1 443 Br/м2
245 м2
3 паверхі
в. Русінавічы, Мінскі раён
471 728 Br
3 369 Br/м2
4 пак.
140 м2
2 паверхі
вул. Млынавая, 3, аг. Прылукі, Мінскі раён
633 885 Br
2 756 Br/м2
230 м2
2 паверхі
вул. Юзафавіча, аг. Самахвалавічы, Мінскі раён
545 436 Br
2 360 Br/м2
5+ пак.
231.1 м2
2 паверхі
вул. Менка, 27, в. Гарадзішча, Мінскі раён
324 018 Br
2 064 Br/м2
156.95 м2
1 паверх
вул. Піянерская, 15, в. Гарадзішча, Мінскі раён
331 684 Br
3 144 Br/м2
105.5 м2
2 паверхі
вул. Мінская, 49, аг. Возера, Уздзенскі раён
262 399 Br
1 280 Br/м2
205 м2
3 паверхі
вул. Цэнтральная, в. Гаруцішкі, Дзяржынскі раён
262 399 Br
8 747 Br/м2
2 пак.
30 м2
1 паверх
в. Малінаўка, Мінскі раён
Малінаўка ~1025 метраў
291 882 Br
2 392 Br/м2
122 м2
2 паверхі
в. Закружка, Мінскі раён
339 939 Br
1 889 Br/м2
180 м2
2 паверхі
вул. Сонечная, аг. Дзешчанка, Уздзенскі раён
229 967 Br
873 Br/м2
3 пак.
263.3 м2
2 паверхі
вул. Цэнтральная, в. Плябанцы, Мінскі раён