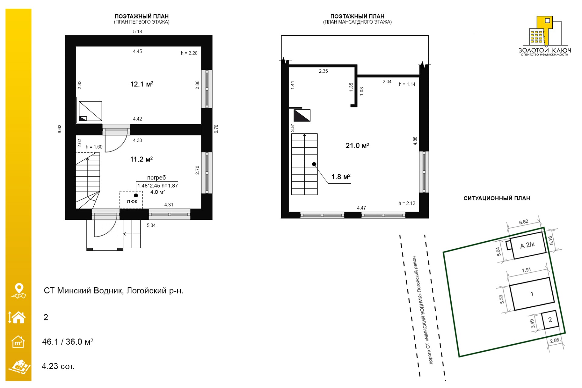
Прадаецца ўтульная дача ў с.т. Мінскі Воднік плошчай 46 м² і ўчасткам 4.23 соткі

30, c.т. Мінскі Воднік
46.1 м2
Агульная плошча
36 м2
Жылая
2
Пакояў
2024
Год пабудовы
Апісанне

Предлагаем к продаже уютный дачный домик в СТ МИНСКИЙ ВОДНИК, Логойский район.

•В тихом и живописном месте продается аккуратный 2-х этажный дачный домик общей площадью 46,1 кв.м., расположенный на ровном участке, площадью 4,23 сотки.

Дом с 2-мя комфортными спальнями и кухней-гостиной очень тёплый, готов для круглогодичного проживания. Имеется камин и погреб.

 •В отдельной благоустроенной постройке с печным отоплением расположен бойлер, душевая, туалет. Вода: сезонная+скважина. Также на участке имеется хозяйственное помещение для хранения инструментов и другого инвентаря.

 •Участок ровный, по периметру огорожен металлическим забором + сетка-рабица. Имеются плодовые деревья и кусты.

 •Удобный Асфальтированный подъезд. В шаговой доступности остановка общественного транспорта.

 •Расстояние до МКАД составляет 22 км. и 8 км. до Острошицкого Городка

Уласцівасці
Пакояў
2
Агульная плошча
46.1 м2
Жылая
36 м2
Участак (соткі)
4.23
Паверхаў
2
Год пабудовы
2024
Гатоўнасць
100%
Матэрыял сцен
Цагляны
Водазабеспячэнне
Свідравіна
Ацяпленне
Пячное
Каналізацыя
Выграбная яма
На тэрыторыі
Гаспадарчыя пабудовы, Сад
Адрас на мапе
30, c.т. Мінскі Воднік
Інфраструктура
Планіроўка аб`екта
Паглядзець
Абноўлена28.10.2025, 15:39
Нумар дамовы 116/1 от 27.10.2025
Усяго праглядаў15

Падобныя аб'екты побач

46 095 Br
870 Br/м2
53 м2
1 паверх
c.т. Будіндустрыя
46 390 Br
627 Br/м2
2 пак.
74 м2
2 паверхі
c.т. Сувязіст
32 503 Br
708 Br/м2
45.9 м2
1 паверх
48, c.т. Пералесак
55 846 Br
419 Br/м2
138.3 м2
2 паверхі
СТ Баравінка
64 710 Br
1 158 Br/м2
55.9 м2
2 паверхі
62, c.т. Фарфорыст
64 710 Br
1 505 Br/м2
43 м2
1 паверх
58, СТ Юбілейнае-1
88 349 Br
901 Br/м2
98.1 м2
2 паверхі
вул. 6-я, c.т. Рамонак Саламарэчанскі
82 439 Br
726 Br/м2
113.5 м2
3 паверхі
116, СТ Ураджай-2002
73 870 Br
1 121 Br/м2
65.9 м2
2 паверхі
149, c.т. Рамонак Саламарэчанскі
67 665 Br
908 Br/м2
74.5 м2
2 паверхі
СТ Лясное-70
32 473 Br
406 Br/м2
80 м2
2 паверхі
112, СТ Зорачка-2002
44 027 Br
528 Br/м2
83.4 м2
3 паверхі
вул. Бэзавая, 104, c.т. Энергетык-1