Прадаецца прасторная дача ў СТ Зорачка-2002 плошчай 245 м² і ўчасткам 8.03 соткі

вул. Ніжняя, СТ Зорачка-2002
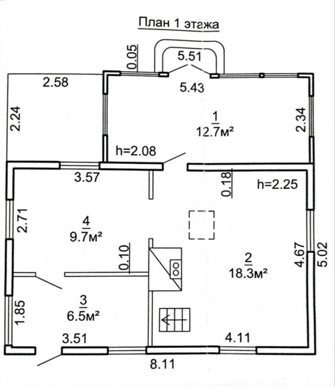
244.7 м2
Агульная плошча
129 м2
Жылая
17.2 м2
Кухня
2023
Год пабудовы
Апісанне

Дача мечты рядом с Минском

❤️ Просторный дачный дом с участком в 22 км от МКАД - для жизни и отдыха!

- Просторный дом общей площадью 244,7 кв.м. с жилой зоной 129 кв.м. и кухней 17,2 кв.м. станет отличным вариантом как для большой семьи, так и для комфортного отдыха. Рациональная планировка и большие метражи позволяют воплотить любые интерьерные решения.

- Дом кирпичный, трёхуровневый, построен в 2023 году с соблюдением всех строительных норм. Для надёжности выполнены армопояса, установлена монолитная бетонная лестница на второй этаж. Второй этаж свободной планировки, что позволит обустроить его под свои потребности.

- Отопление обеспечивается твёрдотопливным котлом. К дому подведён газ, благодаря чему можно легко организовать газовое отопление. У вас всегда будет выбор наиболее удобного и экономичного способа обогрева.

- В доме предусмотрено водоснабжение из колодца и сезонная подача воды. Кровля выполнена из ондулина, долговечного и надёжного материала, защищающего дом от любых осадков.

- Участок площадью 8,03 сотки ухожен и готов к отдыху: высажен зелёный газон. Дополнительным преимуществом станет свободная земля за участком площадью 15 соток. Её можно использовать под сад, огород или хозяйственные постройки.

- Локация максимально удобна: всего 22 км от МКАД, рядом железнодорожная остановка Домашаны. До неё регулярно ходят маршрутки из Минска, что делает дорогу простой и комфортной как на машине, так и на общественном транспорте.

- Для повседневного комфорта рядом находятся магазины. Один всего в пяти минутах пешком, другой в десяти минутах. Всё необходимое всегда под рукой.

❤️ Узнать больше об объекте - звоните!

❤️ Мы с радостью покажем Вам данный объект и сделаем Вас его счастливыми хозяевами!

А также хотите:

- выгодно продать

- срочно выкупить

- найти лучшую квартиру

- заработать на инвестициях в недвижимость

- сделать дизайнерский ремонт

Тогда «Моя 7Я» решит это, как для своей семьи: с любовью, заботой и желаемым результатом!

Агентство недвижимости ООО «Центр международной недвижимости Моя 7Я»

УНП 193750826

Лицензия: № 02240/484 выдана МЮ РБ 18.05.2024 г.

Страховое свидетельство БР 0004913

Уласцівасці
Агульная плошча
244.7 м2
Жылая
129 м2
Кухня
17.2 м2
Участак (соткі)
8.03
Паверхаў
3
Год пабудовы
2023
Гатоўнасць
100%
Матэрыял сцен
Цагляны
Водазабеспячэнне
Калодзеж
Адрас на мапе
вул. Ніжняя, СТ Зорачка-2002
Інфраструктура

Падобныя аб'екты побач

64 139 Br
584 Br/м2
109.8 м2
2 паверхі
6-ы праезд, СТ Узгор'е-2002
155 126 Br
920 Br/м2
168.6 м2
3 паверхі
Н-9532
83 231 Br
733 Br/м2
113.5 м2
3 паверхі
116, СТ Ураджай-2002
68 315 Br
917 Br/м2
74.5 м2
2 паверхі
СТ Лясное-70
65 332 Br
1 519 Br/м2
43 м2
1 паверх
58, СТ Юбілейнае-1
119 328 Br
828 Br/м2
3 пак.
144.1 м2
2 паверхі
СТ Зялёны Бор
101 130 Br
1 313 Br/м2
77 м2
2 паверхі
вул. 6-я Садовая, СТ Сонечны Бор
65 332 Br
766 Br/м2
85.3 м2
3 паверхі
44, c.т. Сарочча Поле
74 580 Br
1 053 Br/м2
70.8 м2
2 паверхі
СТ Быкачана
58 471 Br
423 Br/м2
138.3 м2
2 паверхі
67, СТ Баравінка
86 214 Br
1 388 Br/м2
62.1 м2
2 паверхі
вул. Грушавая, 59, СТ Спадарожнік
141 702 Br
2 066 Br/м2
3 пак.
68.6 м2
2 паверхі
c.т. Мінскі Воднік