Прадаецца ўтульная дача ў СТ Гарняк-94 плошчай 51 м² і ўчасткам 6 сотак

СТ Гарняк-94
51 м2
Агульная плошча
36.4 м2
Жылая
2025
Год пабудовы
Апісанне

Стильный, современный "Барнхаус" в 22 км. от МКАД

❤️ Современные технологии, уютное пространство и уникальное расположение делают этот дом отличным выбором!

-Продаётся современный барнхаус 2025 года постройки, экологичный и стильный.

-Совершенно новый дом, продуман для комфортной жизни и инвестиций!

-При строительстве использовались только высококачественные материалы.Энергоэффективный дом строился по индивидуальному проекту, поэтому в нём удобная и идеально продуманная планировка.

-Общая площадь - 51 м2 (жилая - 36,4 м2). Такой формат идеально подойдёт как для постоянного проживания, так и для загородного отдыха в выходные.

-Внутри всё сделано с акцентом на комфорт: отопление осуществляется через кондиционер, что позволяет поддерживать оптимальную температуру и летом, и зимой. Водоснабжение из собственной скважины, а канализация автономная, что гарантирует независимость и удобство.

-Просторная гостиная с качественными панорамными окнами «в пол», стильная кухня с техникой и современный дизайн в каждой детали.

-Дополнительный уют создают тёплые полы - особенно приятная деталь в прохладный сезон.

-Участок площадью 6 соток ровный, аккуратный и удобный для обустройства: можно создать уголок для отдыха с зоной барбекю.

-Удобные подъездные пути обеспечивают комфортный доступ к дому в любое время года.

-Главное преимущество этого дома - его расположение. Всего 25 километров от станции метро «Уручье»! А значит, что вместе с уединённой атмосферой загородной жизни вы сохраняете удобство мегаполиса.

❤️Этот дом - идеальное решение для тех, кто хочет жить ближе к природе, но не жертвовать удобством города.

❤️ Ищете выгодную недвижимость или хотите продать свою? Мы решим это для Вас с заботой и профессионализмом:

- Купить квартиру или дом в Минске и области- Продать недвижимость по выгодной цене- Оформить ипотеку, семейный капитал или кредит на покупку недвижимости- Помочь с инвестициями в недвижимость- Подобрать дизайнерский ремонт или перепланировку- Выбрать лучший банк для выгодного кредита и лизинга

* Напишите нам в удобный мессенджер - Viber, Telegram или WhatsApp, и мы ответим на все вопросы!

❤️ «Моя 7Я» решит это, как для своей семьи: с любовью, заботой и желаемым результатом!

Агентство недвижимости ООО «Центр международной недвижимости Моя 7Я» | УНП 193750826 | Лицензия: № 02240/484 выдана МЮ РБ 18.05.2024 г. | Страховое свидетельство БР 0004913

Уласцівасці
Агульная плошча
51 м2
Жылая
36.4 м2
Участак (соткі)
6
Паверхаў
1
Год пабудовы
2025
Гатоўнасць
100%
Матэрыял сцен
Іншае
Водазабеспячэнне
Свідравіна
Ацяпленне
Электрычнае
Адрас на мапе
СТ Гарняк-94
Інфраструктура

Падобныя аб'екты побач

113 063 Br
463 Br/м2
244.7 м2
3 паверхі
вул. Ніжняя, СТ Зорачка-2002
155 126 Br
920 Br/м2
168.6 м2
3 паверхі
Н-9532
265 505 Br
2 153 Br/м2
123.3 м2
3 паверхі
116, СТ Ураджай-2002
199 576 Br
1 349 Br/м2
147.9 м2
2 паверхі
c.т. Стралец-2014
119 328 Br
828 Br/м2
3 пак.
144.1 м2
2 паверхі
СТ Зялёны Бор
101 130 Br
1 313 Br/м2
77 м2
2 паверхі
вул. 6-я Садовая, СТ Сонечны Бор
208 675 Br
6 323 Br/м2
33 м2
1 паверх
СТ Вяснянка-1
141 702 Br
2 066 Br/м2
3 пак.
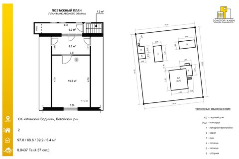
68.6 м2
2 паверхі
c.т. Мінскі Воднік
223 442 Br
1 862 Br/м2
120 м2
2 паверхі
211, СТ Вярагі
104 412 Br
2 300 Br/м2
45.4 м2
2 паверхі
вул. Кветкавая, c.т. Шыпяны
202 559 Br
2 195 Br/м2
92.3 м2
2 паверхі
вул. Цяністая, СТ Віёла
250 589 Br
1 139 Br/м2
220 м2
3 паверхі
вул. Бэзавая, СТ Чарніца