Аренда торговой площади по ул. Алфёрова, 7

вул. Жарэса Алфёрава, 7, Мінск
Аэрадромная ~796 метраў
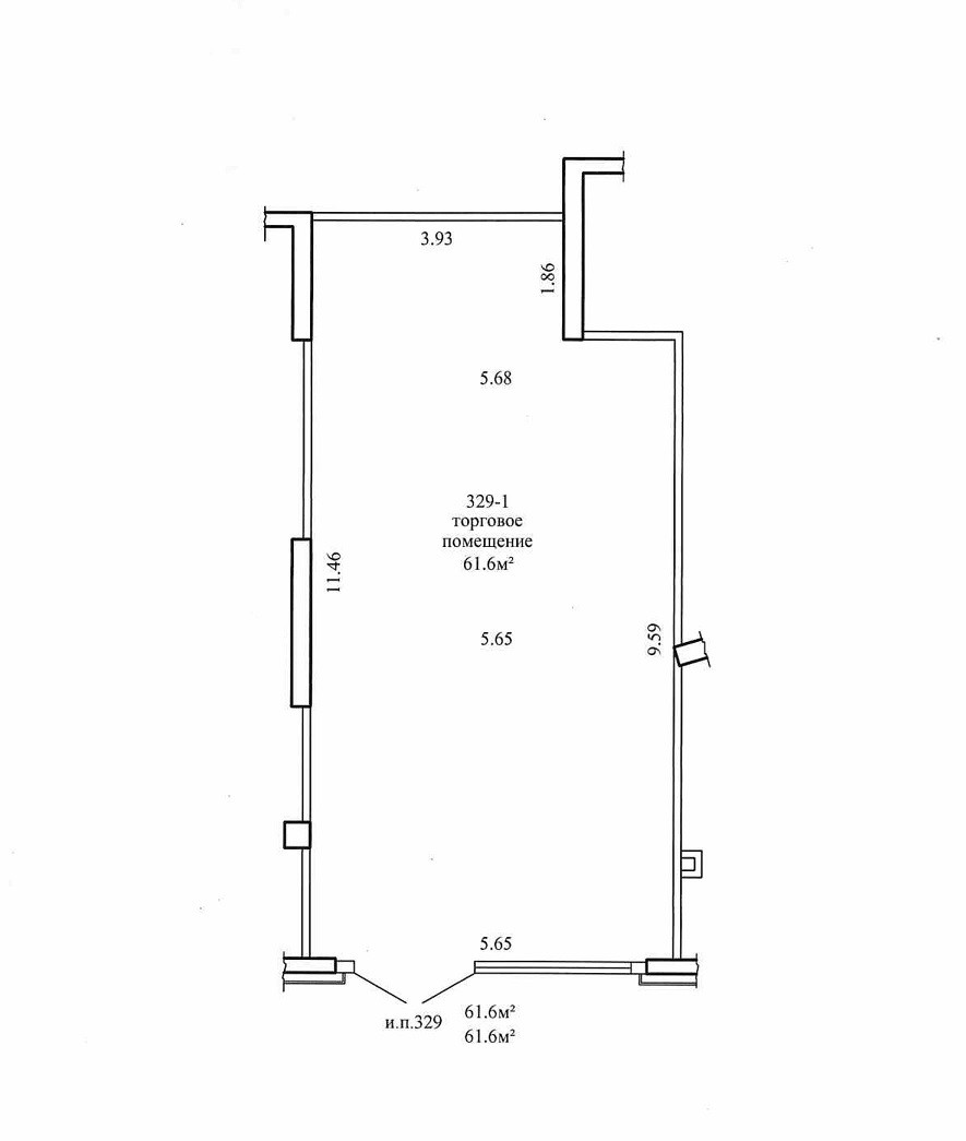
61.6 м2
Агульная плошча
1 з 25
Паверх
Апісанне

Сдаётся в аренду торговое помещение на ул. Жореса Алфёрова 7 (дом «Манчестер»), общей площадью 61,6 кв.м. Дом расположен в быстроразвивающимся и плотно населенном районе «Minsk World». Торговое помещение расположено на первом этаже 25-этажного жилого дома, с отельным входом, что обеспечивает ежедневный доступ 24/7. Помещение находится недалеко от основного входа в жилой дом. Высокие потолки, панорамные окна. Черновая отделка. В шаговой доступности остановки общественного транспорта, большой пешеходный и автомобильный трафик, в 2024 году открытие станции метро «Аэродромная».

  В помещение заведено отопление, водоснабжение, канализация и электроэнергия. Есть возможность адаптировать помещение под свой бизнес.

Предлагаемая площадь подойдет под различные сферы услуг: магазин, кофейни, услуги и другие виды бизнеса.

Арендатор не оплачивает услуги агентства.

Ещё больше объектов недвижимости в нашем Telegram-канале @urielt_minsk

Уласцівасці
Катэгорыя объекта
Гандлёвыя памяшканні
Метро
Аэрадромная
Агульная плошча
61.6 м2
Паверх
1 з 25
Адрас на мапе
вул. Жарэса Алфёрава, 7, Мінск
Інфраструктура
Абноўлена12.12.2025, 03:30
Нумар дамовы№46/2А от 29.10.2024
Усяго праглядаў48

Падобныя аб'екты побач

4 052 Br
56 Br/м2
72.8 м2
1 /25  паверх
вул. Ігара Лучанка, 29, Мінск
Аэрадромная ~790 метраў
2 977 Br
63 Br/м2
47 - 49 м2
1  паверх
вул. Ігара Лучанка, 30, Мінск
Аэрадромная ~955 метраў
2 581 Br
35 Br/м2
74 м2
вул. Леаніда Шчамялёва, 30, Мінск
Аэрадромная ~1195 метраў
3 119 Br
73 Br/м2
43 м2
вул. Ігара Лучанка, 16, Мінск
Аэрадромная ~443 метра
2 699 Br
62 Br/м2
43.8 м2
вул. Ігара Лучанка, 16, Мінск
Аэрадромная ~477 метраў
2 763 Br
34 Br/м2
80.2 м2
вул. Быхаўская, 10, Мінск
Кавальская Слабада ~317 метраў
4 362 Br
47 Br/м2
93.2 м2
пр. Дзяржынскага, 92, Мінск
Пятроўшчына ~197 метраў
4 863 Br
47 Br/м2
103.9 м2
пр. Дзяржынскага, 92, Мінск
Пятроўшчына ~197 метраў
4 362 Br
47 Br/м2
93.2 м2
пр. Дзяржынскага, 92, Мінск
Пятроўшчына ~197 метраў
5 361 Br
21 Br/м2
261 м2
1 /1  паверх
2-гі Загарадны завулак, 2А, Мінск
Маладзёжная ~799 метраў
2 980 Br
40 Br/м2
74.5 м2
вул. Чурлёніса, 6, Мінск
Малінаўка ~587 метраў
2 280 Br
8 Br/м2
301 м2
вул. Старажоўская, 6, Мінск
Няміга ~583 метра