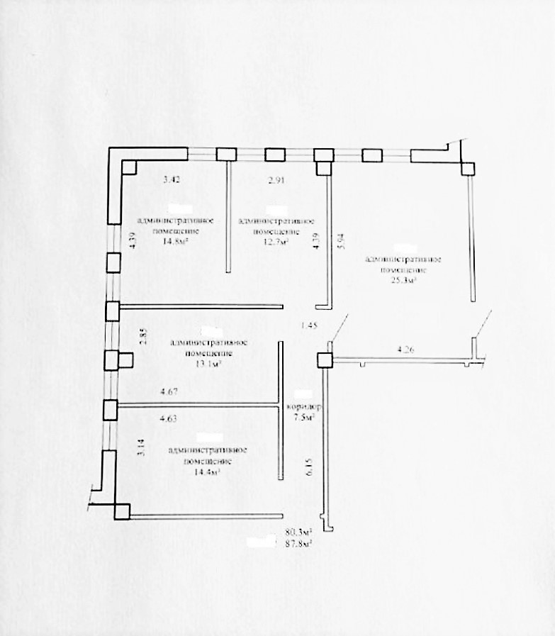
Сдается офисное помещение по адресу Офис 14.4 кв.м по ул.Некрасова,114( Б/ц "Капитал")
Сдаётся офисное помещение на 6-ом этаже БЦ Капитал ул. Некрасова, 114 - класс B. Площадь - 14.4 кв. м., хороший ремонт, большие окна - стеклопакеты ПВХ, видеонаблюдение, есть система контроля доступа, кондиционер. На первом этаже охрана, большой лифт, 2005г.п.
Возможность аренды и всех помещений на этаже - 88 кв.м.
Ремонт: пол - ковровое покрытие, линолеум, плитка; стены под подкраску; потолки - армстронг; стеклопакеты ПВХ, кондиционеры.
С/у общий на коридоре, импортный лифт Otis, 2005 г.п., каркасно-блочный.
Наличие парковки и юр.адреса.
Хорошее транспортное сообщение (автостанция Карастояновой).
Ещё больше объектов недвижимости в нашем Telegram-канале @urielt_minsk
 
                                         
                 
                 
                 
                 
                 
                 
                 
                 
                 
                 
                 
                 
                 
                 
                 
                 
                 
                 
                 
     
                                             
                                             
                                             
                                             
                                             
                                             
                                             
                                             
                                             
                                             
                                             
                                             
                                             
                                             
                                             
                                             
                                             
                                             
                                             
                                             
                                             
                                             
                                             
                                             
                                             
                                             
                                             
                                             
                                             
                                             
                                             
                                             
                                             
                                             
                                             
                                             
                                            