Сдается офисное помещение по адресу Офис 27.5 кв.м по ул.Некрасова,114( Б/ц "Капитал")
Сдается помещение 27,5кв.м. состоящий из двух кабинетов (офис) на 6-ом этаже БЦ Капитал ул. Некрасова,114 - класс B.
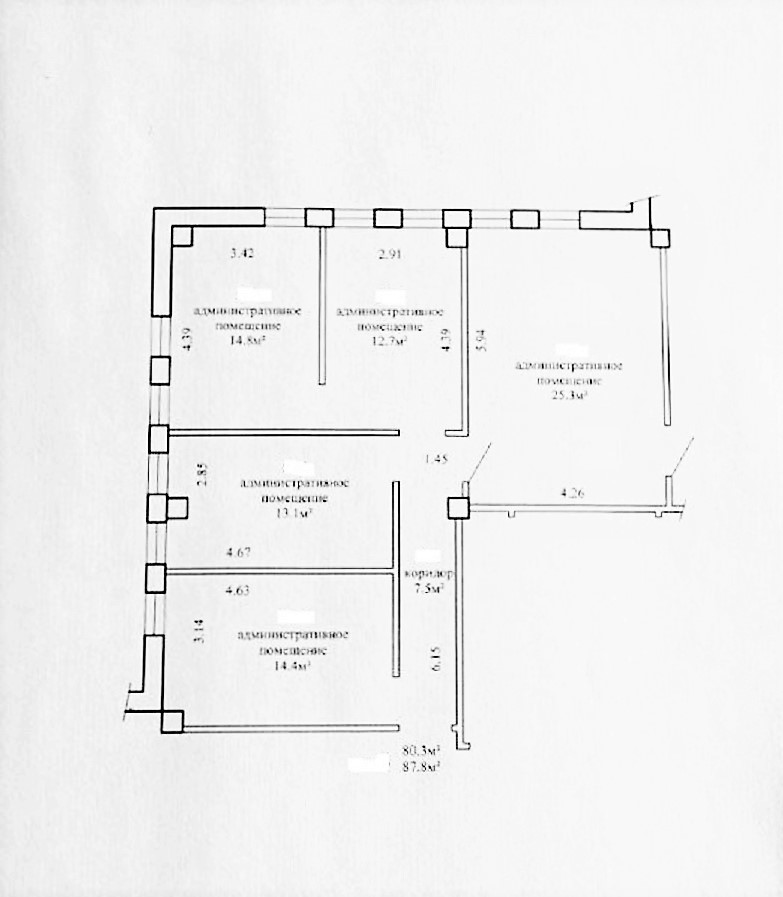
В наличии есть 5 кабинетов на выбор от 13,1 кв.м. до 27,5 кв.м., хороший ремонт, большие окна - стеклопакеты ПВХ, видеонаблюдение, есть система контроля доступа, кондиционер. На первом этаже охрана, большой лифт, 2005г.п.
Хорошее транспортное сообщение.
Все помещения с ремонтом: пол - ковровое покрытие, линолеум, плитка; стены под подкраску; потолки - армстронг; стеклопакеты ПВХ, кондиционеры.
С/у общий на коридоре, импортный лифт Otis, 2005 г.п., каркасно-блочный.
Наличие парковки и юр.адреса.
Хорошее транспортное сообщение (автостанция Карастояновой).
Ещё больше объектов недвижимости в нашем Telegram-канале @urielt_minsk
 
                                         
                 
                 
                 
                 
                 
                 
                 
                 
                 
                 
                 
                 
                 
                 
                 
                 
                 
                 
                 
     
                                             
                                             
                                             
                                             
                                             
                                             
                                             
                                             
                                             
                                             
                                             
                                             
                                             
                                             
                                             
                                             
                                             
                                             
                                             
                                             
                                             
                                             
                                             
                                             
                                             
                                             
                                             
                                             
                                             
                                             
                                             
                                             
                                             
                                             
                                             
                                             
                                             
                                             
                                             
                                             
                                             
                                             
                                             
                                             
                                             
                                             
                                             
                                             
                                             
                                             
                                             
                                             
                                             
                                             
                                             
                                             
                                             
                                             
                                             
                                             
                                             
                                             
                                             
                                             
                                             
                                             
                                             
                                             
                                             
                                             
                                             
                                             
                                             
                                             
                                             
                                             
                                             
                                             
                                             
                                             
                                             
                                             
                                             
                                             
                                             
                                             
                                             
                                             
                                            