Сдается офисное помещение по адресу Аренда офиса 36.8 м2 в БЦ на Одоевского 131

вул. Адоеўскага, 131, Мінск
Кунцаўшчына ~1129 метраў
36.8 м2
Агульная плошча
2 з 5
Паверх
Апісанне

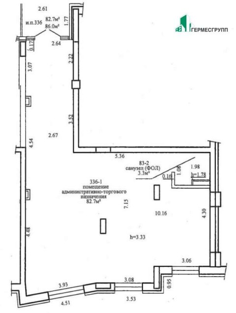
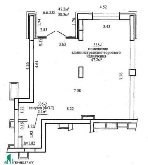
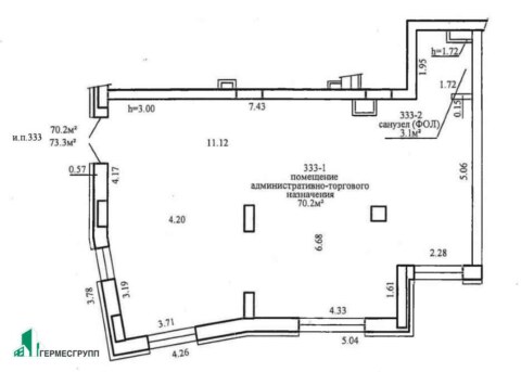
Сдается офисное помещение 36.8 м2 на 2ом этаже отдельностоящего административного здания, на центральном входе круглосуточная охрана с пропускной системой, доступ возможен в любое время.

Естественное освещение, отопление, с/у на этаже, есть комната для хозинвентаря.

Стеклопакеты, пол - плитка, линолеум, система кондиционирования, видеонаблюдение, разведена компьютерная сеть. Без мебели.

Данные помещения подойдут для размещения IT компании, под офисы крупной организации. Перед зданием есть парковка.

Ещё больше объектов недвижимости в нашем Telegram-канале @urielt_minsk

Уласцівасці
Катэгорыя объекта
Офісы
Метро
Кунцаўшчына
Агульная плошча
36.8 м2
Паверх
2 з 5
Адрас на мапе
вул. Адоеўскага, 131, Мінск
Інфраструктура
Абноўлена22.10.2025, 00:30
Нумар дамовы№18/1а от 26.04.2019
Усяго праглядаў163

Падобныя аб'екты побач

1 330 Br
25 Br/м2
53 м2
2 /5  паверх
вул. Утульная, Мінск
Кунцаўшчына ~1153 метра
906 Br
30 Br/м2
30.2 м2
1 /1  паверх
вул. Кальварыйская, 44, Мінск
Маладзёжная ~664 метра
894 Br
39 Br/м2
23 м2
1 /1  паверх
вул. Кальварыйская, 44, Мінск
Маладзёжная ~664 метра
600 Br
2 Br/м2
367.8 м2
вул. Маршала Лосіка, 31, Мінск
1 097 Br
31 Br/м2
35.4 м2
вул. Маршала Лосіка, 31, Мінск
840 Br
1 Br/м2
600 м2
вул. Садовая, 3В, в. Каменная Горка
840 Br
1 Br/м2
600 м2
вул. Садовая, 3В, в. Каменная Горка
805 Br
30 Br/м2
27 м2
4 /8  паверх
вул. Казінца, 11А, Мінск
694 Br
62 Br/м2
11.2 м2
1 /1  паверх
вул. Няміга, 3А, Мінск
Няміга ~258 метраў
1 341 Br
57 Br/м2
23.4 м2
1 /2  паверх
вул. Няміга, 3А, Мінск
Няміга ~258 метраў
1 283 Br
51 Br/м2
25.1 м2
1 /1  паверх
вул. Няміга, 3А, Мінск
Няміга ~257 метраў
955 Br
7 Br/м2
128.6 м2
вул. Нававіленская, 61, Мінск